规划公布
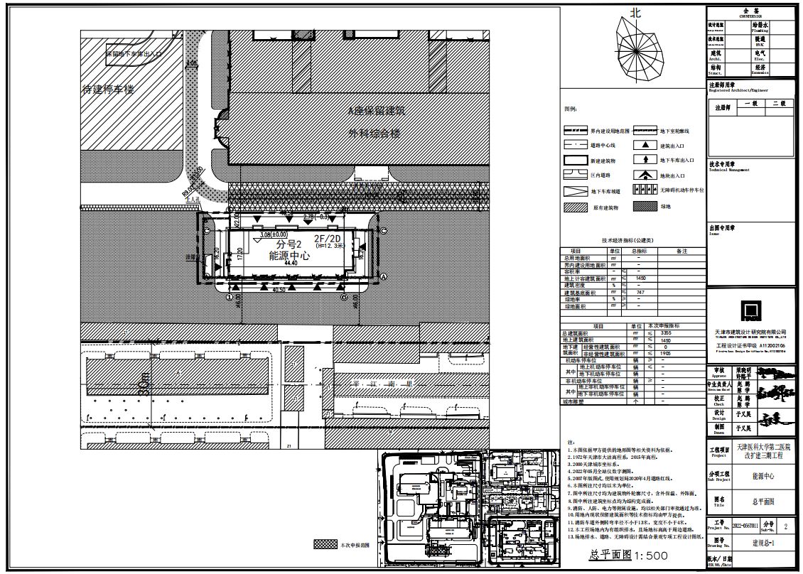
(河西区)关于天津医科大学第二医院改扩建三期工程能源中心项目建设工程设计方案总平面图的公布
国务院相关部委
政府机关
局属单位网站
主办单位:天津市规划和自然资源局 地址:天津市和平区曲阜道84号 邮编:300042
网站标识码:1200000077 备案编号:津ICP备19001981号
津公网安备12010102000518号
版权所有:天津市规划和自然资源局