规划公布
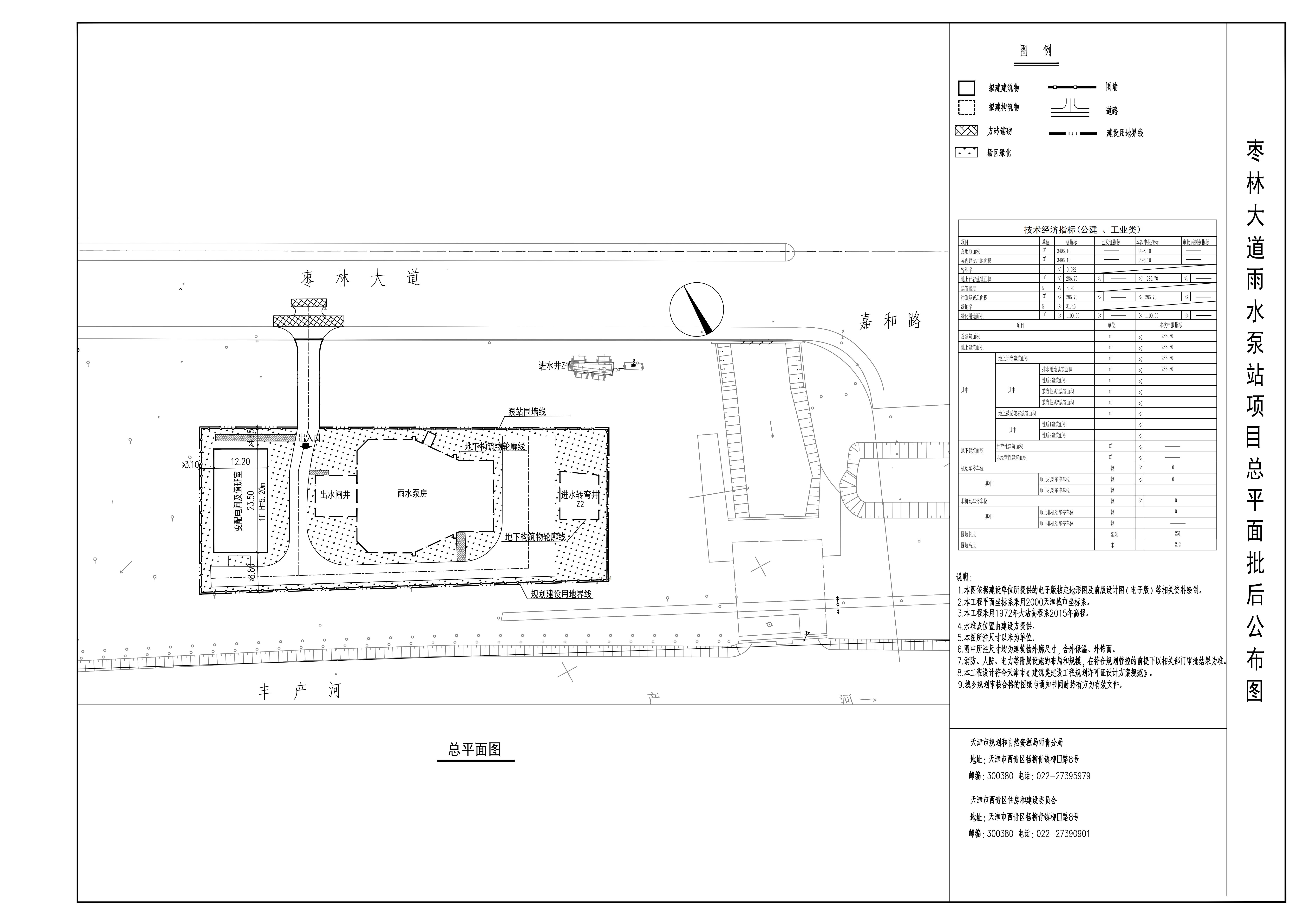
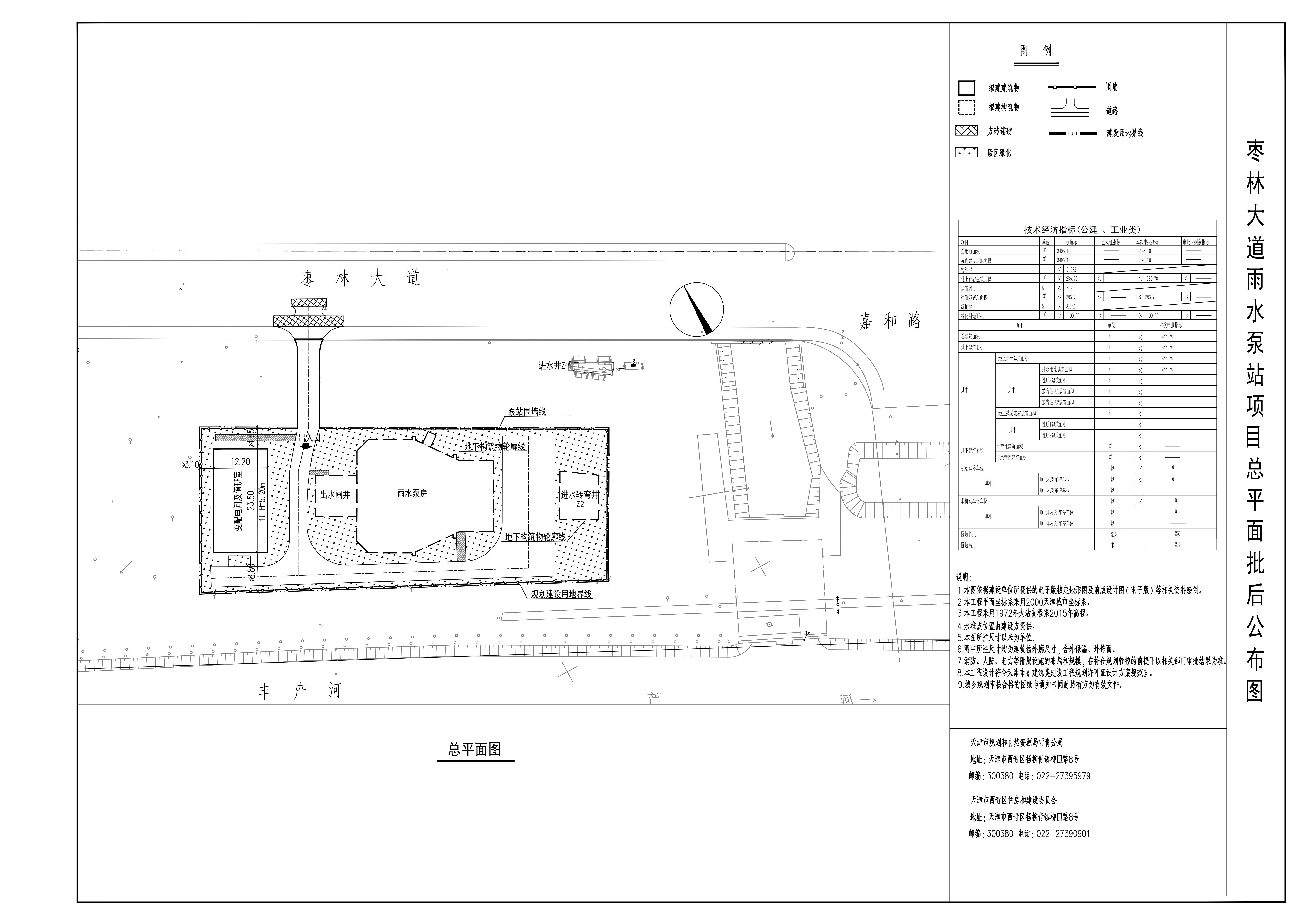
(西青区)枣林大道雨水泵站工程设计方案总平面图的公布
枣林大道雨水泵站工程规划方案总平面图已审批,审批时间为2023年3月23日,证书编号为2023西青建证0021。按照《中华人民共和国城乡规划法》、《天津市城乡规划条例》的要求,现将上述工程总平面图予以公布。
通讯地址:天津市西青区柳口路8号
联系电话:022-27395979
邮政编码:300380
天津市规划和自然资源局西青分局
2023年3月28日

附件下载:
1
、
公布图.jpg





津公网安备12010102000518号