头部背景图 头部背景图
关爱版

当前位置:首页业务频道国土空间规划规划公布

规划公布
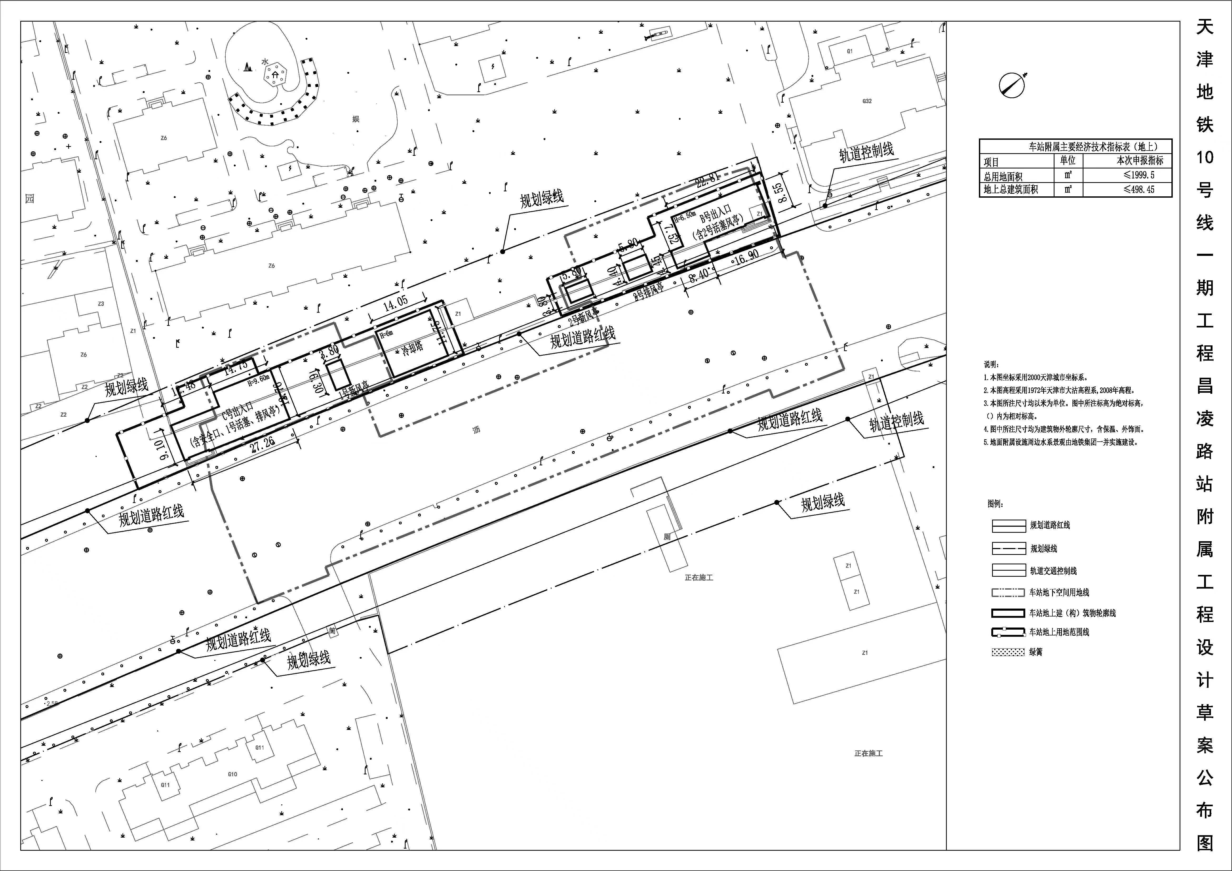
(西青区)天津地铁10号线一期工程昌凌路站附属工程(地上部分)项目建设工程设计方案 总平面图的公布
来源:天津市规划和自然资源局西青分局 时间:2023-03-28 10:01

天津地铁10号线一期工程昌凌路站附属工程(地上部分)项目建设工程规划方案总平面图已审批,审批时间为2023年3月24日,证书编号为2022西青建证0016。按照《中华人民共和国城乡规划法》、《天津市城乡规划条例》的要求,现将上述工程总平面图予以公布。

通讯地址:天津市西青区柳口路8号

联系电话:022-27395979

邮政编码:300380





天津市规划和自然资源局西青分局

2023年3月28日



附件下载:

相关新闻:

友情链接:
党政机关

关于本站| 版权信息| 网站地图| 使用帮助| 联系我们

主办单位:天津市规划和自然资源局 地址:天津市和平区曲阜道84号 邮编:300042

网站标识码:1200000077 备案编号:津ICP备19001981号 徽标  津公网安备12010102000518号

版权所有:天津市规划和自然资源局

关于本站|版权信息|网站地图|使用帮助|联系我们

主办单位:天津市规划和自然资源局

地址:天津市和平区曲阜道84号

网站标识码:1200000077

备案编号:津ICP备19001981号 版权所有:天津市规划和自然资源局

徽标津公网安备12010102000518号

党政机关