头部背景图 头部背景图
关爱版

当前位置:首页业务频道国土空间规划规划公布

规划公布
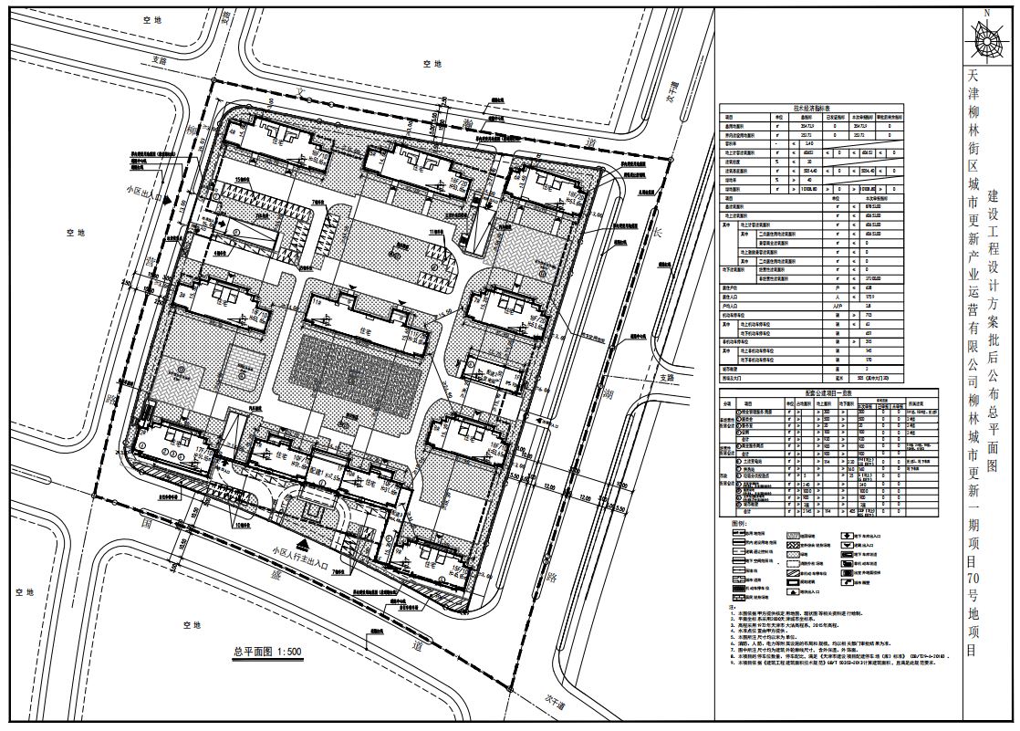
(河西区)关于天津柳林街区城市更新产业运营有限公司柳林城市更新一期项目70号地建设工程设计方案总平面图的公布
来源:天津市规划和自然资源局河西分局 时间:2023-03-02 17:25

许可证编号:2023河西建证0008

附件下载:

相关新闻:

友情链接:
党政机关

关于本站| 版权信息| 网站地图| 使用帮助| 联系我们

主办单位:天津市规划和自然资源局 地址:天津市和平区曲阜道84号 邮编:300042

网站标识码:1200000077 备案编号:津ICP备19001981号 徽标  津公网安备12010102000518号

版权所有:天津市规划和自然资源局

关于本站|版权信息|网站地图|使用帮助|联系我们

主办单位:天津市规划和自然资源局

地址:天津市和平区曲阜道84号

网站标识码:1200000077

备案编号:津ICP备19001981号 版权所有:天津市规划和自然资源局

徽标津公网安备12010102000518号

党政机关