规划公布
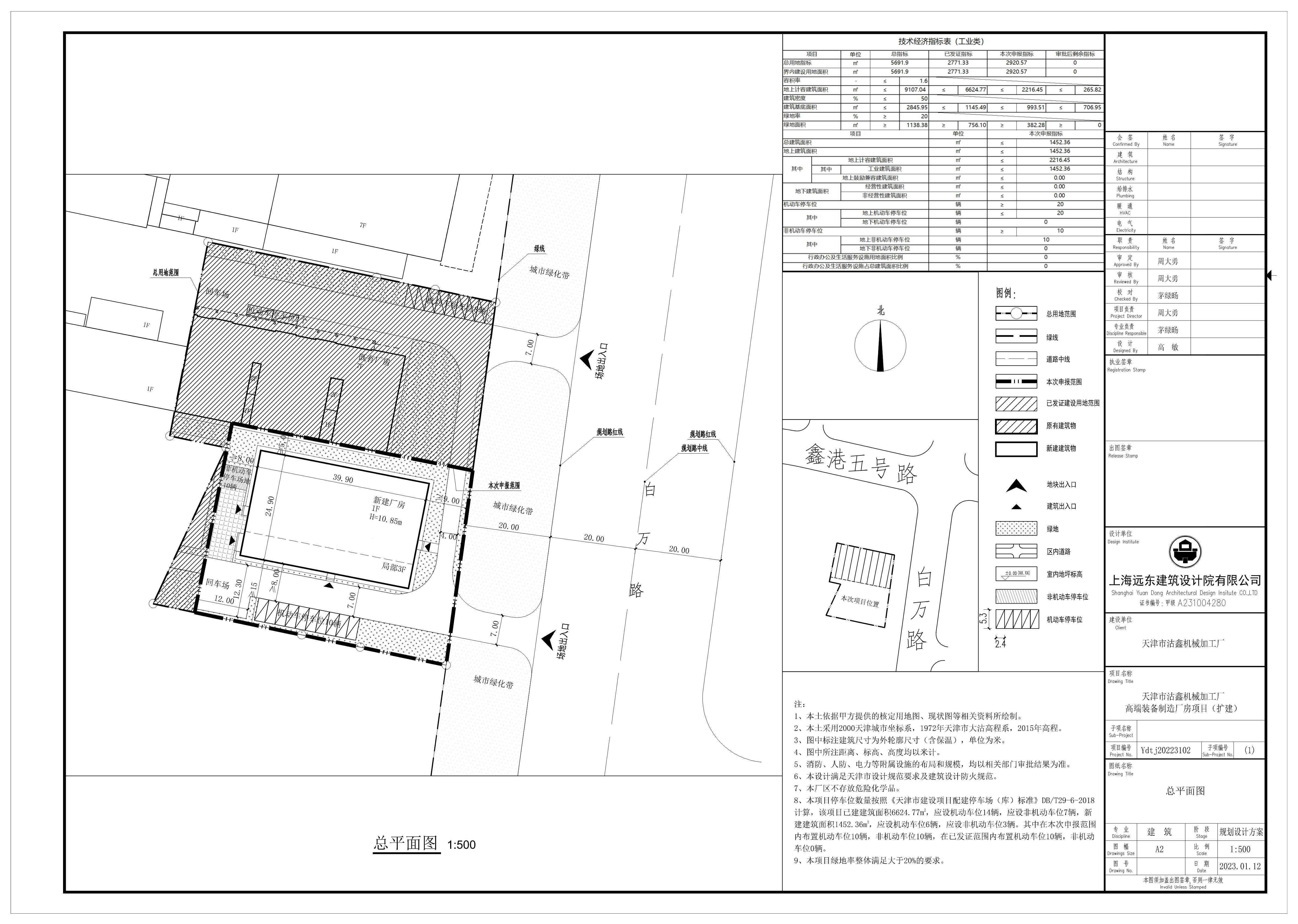
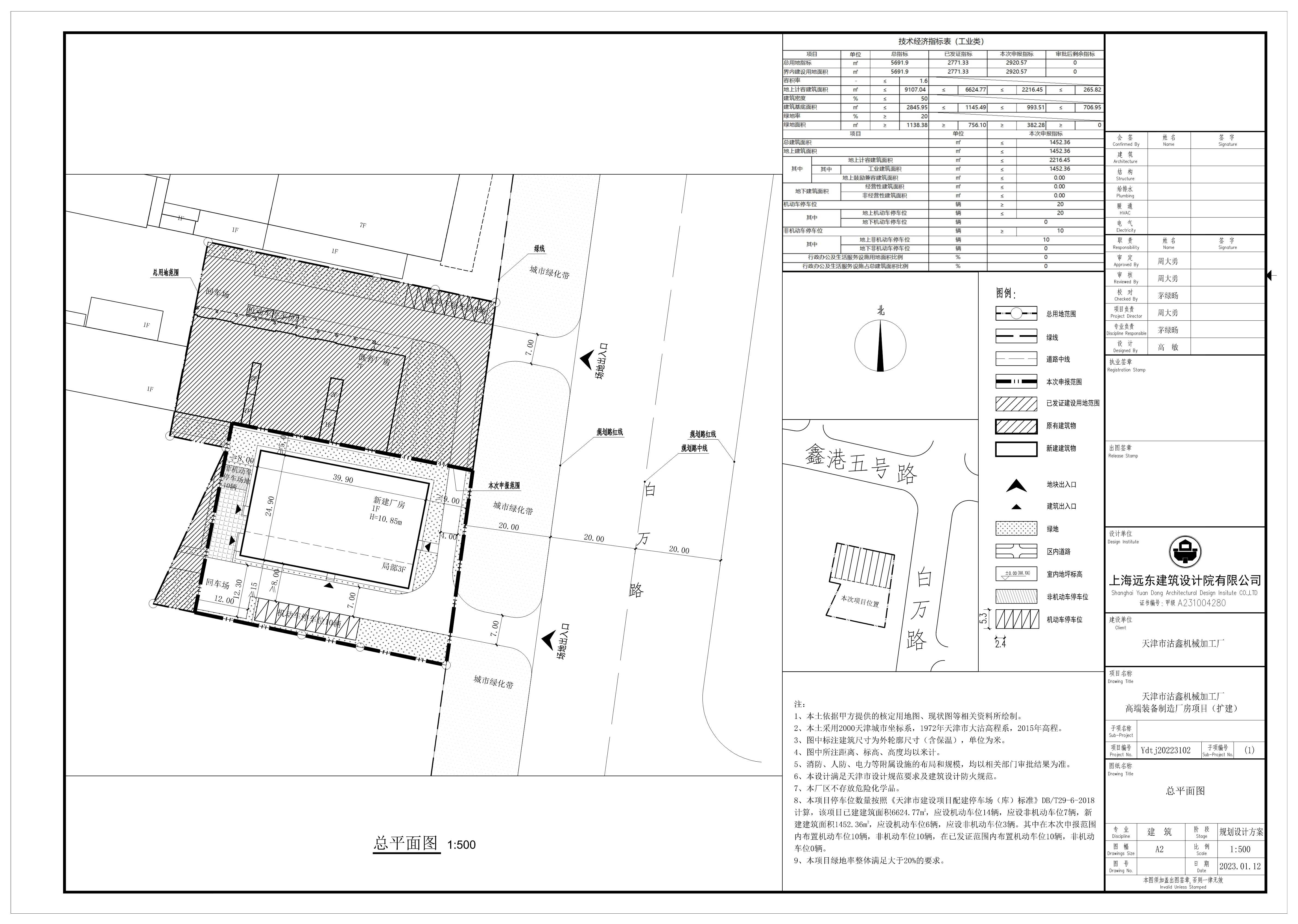
(津南区)天津市沽鑫机械加工厂高端装备制造厂房项目(扩建)项目建设工程设计方案总平面图的公布
依据《中华人民共和国城乡规划法》的有关要求,现将天津市沽鑫机械加工厂高端装备制造厂房项目(扩建)总平面图进行公布,公布期限为信息发布之日至建设项目规划验收合格为止。
通讯地址:天津市津南区南环路3号
联系电话:88510862
天津市规划和自然资源局津南分局
2023年2月13日

附件下载:
1
、
公示图-沽鑫.Jpeg





津公网安备12010102000518号