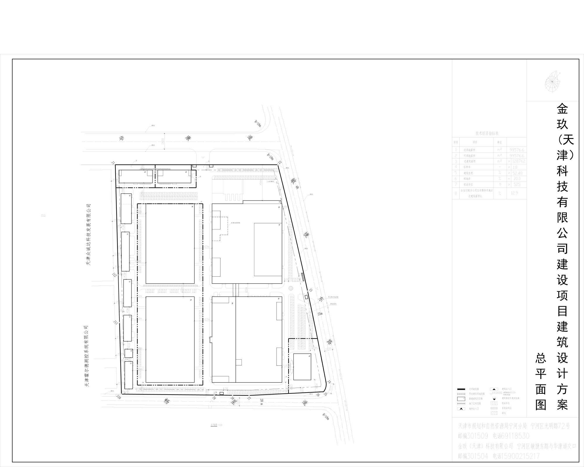
天津市规划和自然资源局宁河分局于2022年07月22日核发了天津市岳川食品加工厂天津市岳川食品新建厂房项目建设工程规划许可证。依据《中华人民共和国城乡规划法》及住房和城乡建设部《关于城乡规划公开公示的规定》的有关要求,现将该项目总平面图公布,公布期限为信息发布之日起至建设项目规划验收合格为止。
公示部门:天津市规划和自然资源局宁河分局
地址:天津市宁河区芦台镇光明路72号
邮编:301500
联系方式:022-69118530

天津市规划和自然资源局宁河分局于2022年07月22日核发了天津市岳川食品加工厂天津市岳川食品新建厂房项目建设工程规划许可证。依据《中华人民共和国城乡规划法》及住房和城乡建设部《关于城乡规划公开公示的规定》的有关要求,现将该项目总平面图公布,公布期限为信息发布之日起至建设项目规划验收合格为止。
公示部门:天津市规划和自然资源局宁河分局
地址:天津市宁河区芦台镇光明路72号
邮编:301500
联系方式:022-69118530

国务院相关部委
政府机关
局属单位网站
主办单位:天津市规划和自然资源局 地址:天津市和平区曲阜道84号 邮编:300042
网站标识码:1200000077 备案编号:津ICP备19001981号
津公网安备12010102000518号
版权所有:天津市规划和自然资源局