规划公布
(西青区)天津地铁10号线一期工程昌凌路站附属工程(地上部分)项目建设工程设计方案总平面图的公布
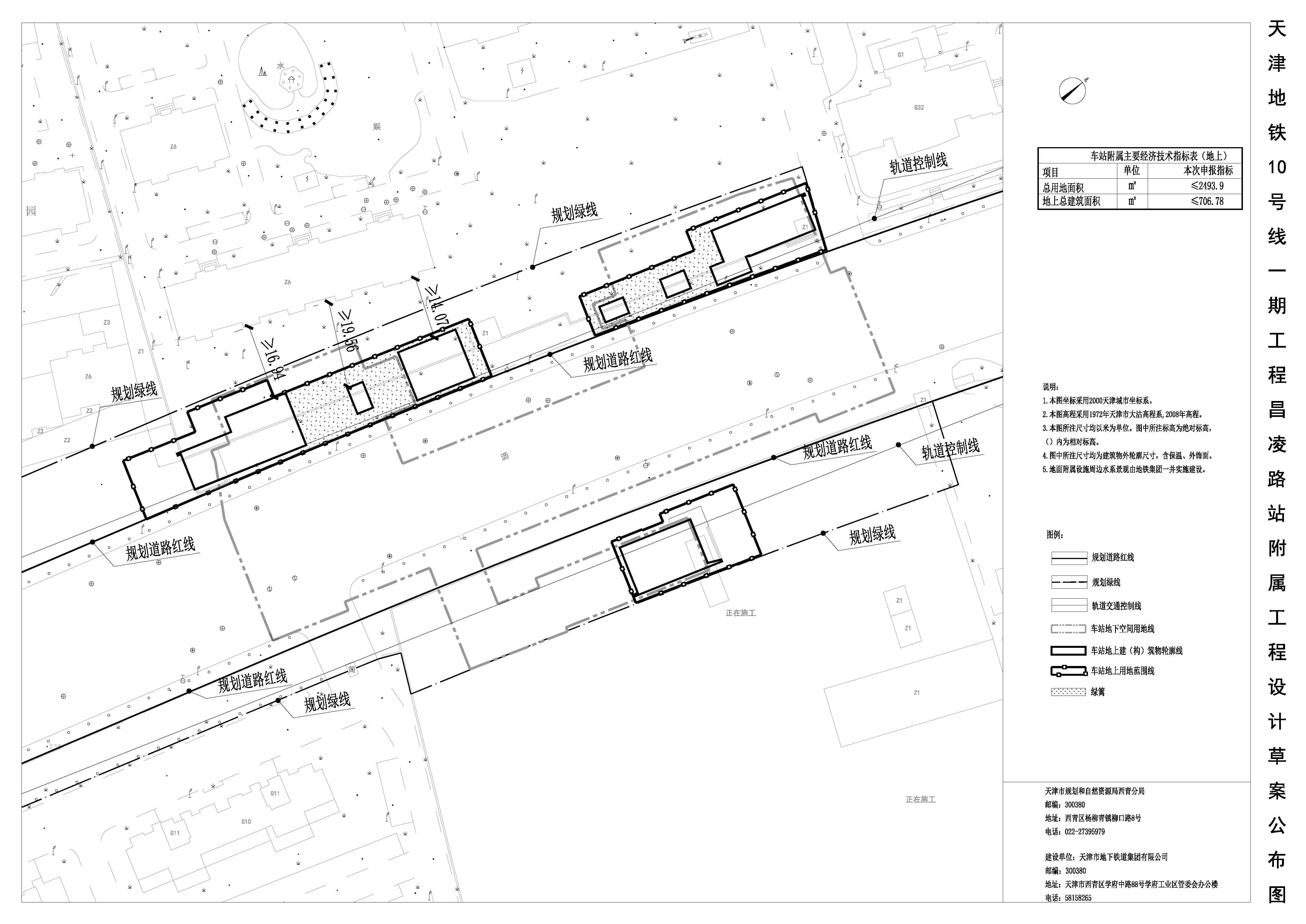
天津地铁10号线一期工程昌凌路站附属工程(地上部分)规划方案总平面图已审批,审批时间为2022年3月29日,证书编号为2022西青建证0016。按照《中华人民共和国城乡规划法》、《天津市城乡规划条例》的要求,现将上述工程总平面图予以公布。
天津市规划和自然资源局西青分局
2022年3月29日

附件下载:





津公网安备12010102000518号