规划公布
天津视华隆视觉科技有限公司申请的2#厂房项目建设工程设计方案总平面图公布
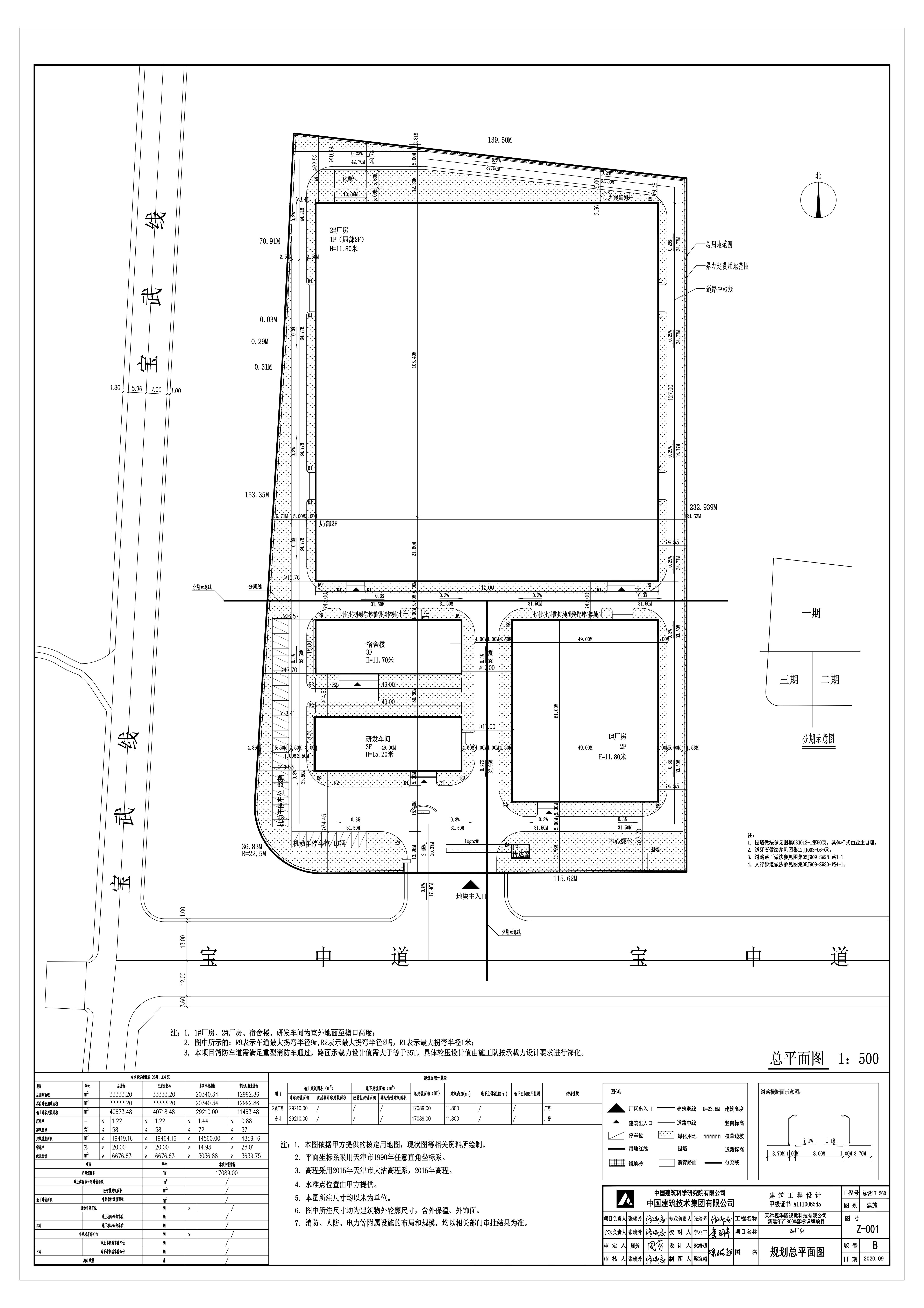
依据《中华人民共和国城乡规划法》和住房城乡建设部《关于城乡规划公开公示的规定》等相关规定要求,现将天津视华隆视觉科技有限公司申请的2#厂房项目建筑设计方案总平面图进行批后公布,公布时间至规划验收合格为止。

附件下载:
依据《中华人民共和国城乡规划法》和住房城乡建设部《关于城乡规划公开公示的规定》等相关规定要求,现将天津视华隆视觉科技有限公司申请的2#厂房项目建筑设计方案总平面图进行批后公布,公布时间至规划验收合格为止。

国务院相关部委
政府机关
局属单位网站
主办单位:天津市规划和自然资源局 地址:天津市和平区曲阜道84号 邮编:300042
网站标识码:1200000077 备案编号:津ICP备19001981号
津公网安备12010102000518号
版权所有:天津市规划和自然资源局