规划公布
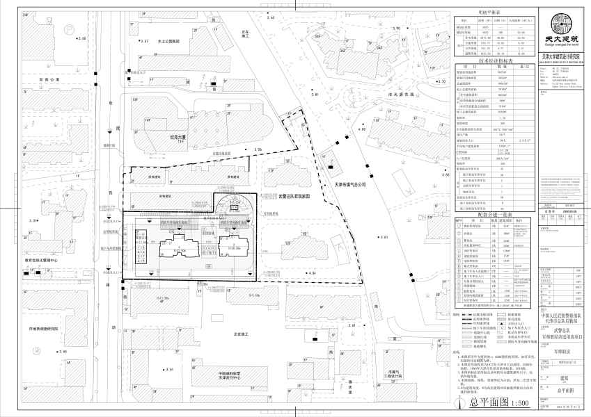
武警天津总队军师职经济适用房项目的总平面设计方案已于2017年6月2日经天津市规划局南开区规划分局审定,依据《城乡规划法》的有关规定,现将总平面图予以公布。
附件下载:
国务院相关部委
政府机关
局属单位网站
主办单位:天津市规划和自然资源局 地址:天津市和平区曲阜道84号 邮编:300042
网站标识码:1200000077 备案编号:津ICP备19001981号
津公网安备12010102000518号
版权所有:天津市规划和自然资源局