规划公布
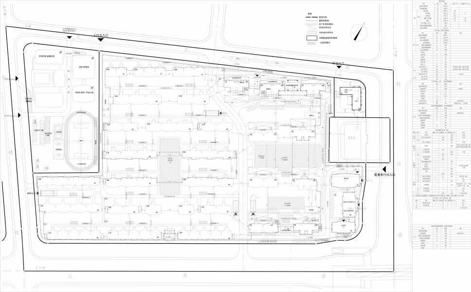
北辰区 天津合雨晨置业有限公司北辰区北辰道(老发电设备厂)地块一期项目基层环卫机构、垃圾转运站建设工程设计方案建设工程设计方案公告(7个工作日)
北辰区规划分局于2017年04月13日审定了天津合雨晨置业有限公司北辰区北辰道(老发电设备厂)地块一期项目基层环卫机构、垃圾转运站建设工程设计方案,依据《中华人民共和国城乡规划法》和《关于印发<天津市城乡规划公开实施方案>的通知》的有关规定,现将该方案总平面图予以公布,公布时间为7个工作日。

附件下载:





津公网安备12010102000518号