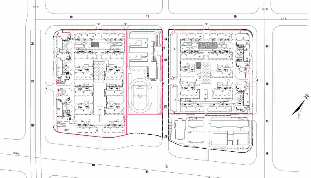
规划公布
北辰区规划分局于201
7
年
3
月
1
日审定了天重一期项目居住地块及小学围墙大门建设工程设计方案,依据《中华人民共和国城乡规划法》和《关于印发<天津市城乡规划公开实施方案>的通知》的有关规定,现将该方案总平面图予以公布,公布时间为7
个工作
日。

附件下载:
国务院相关部委
政府机关
局属单位网站
主办单位:天津市规划和自然资源局 地址:天津市和平区曲阜道84号 邮编:300042
网站标识码:1200000077 备案编号:津ICP备19001981号
津公网安备12010102000518号
版权所有:天津市规划和自然资源局