规划公布
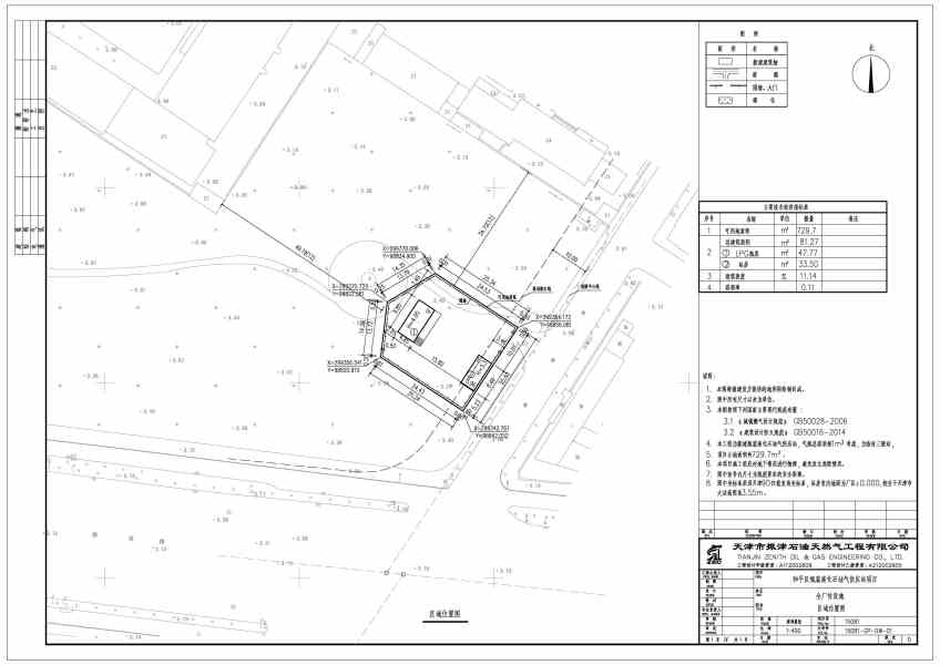
我分局于2016年07月15日核发天津市和平区配套办公室和平区瓶装液化石油气供气站项目《建设工程设计方案审定通知书》(临时建筑)。按照市局《关于政务外网公告公布审批事项有关规定》要求,现拟申请该项目建筑设计方案网上公布,公布日期为7天。
附件下载:
国务院相关部委
政府机关
局属单位网站
主办单位:天津市规划和自然资源局 地址:天津市和平区曲阜道84号 邮编:300042
网站标识码:1200000077 备案编号:津ICP备19001981号
津公网安备12010102000518号
版权所有:天津市规划和自然资源局