规划公布
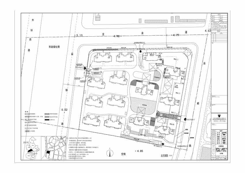
北辰区规划分局于2016年5月27日审定了天津市星河兴业房地产开发有限公司时代雅筑花园燃气调压站的建设工程设计方案,依据《中华人民共和国城乡规划法》和《关于印发<天津市城乡规划公开实施方案>的通知》的有关规定,现将该方案规划图予以公布,公布时间为7个工作日。
附件下载:
国务院相关部委
政府机关
局属单位网站
主办单位:天津市规划和自然资源局 地址:天津市和平区曲阜道84号 邮编:300042
网站标识码:1200000077 备案编号:津ICP备19001981号
津公网安备12010102000518号
版权所有:天津市规划和自然资源局