头部背景图 头部背景图
关爱版

当前位置:首页业务频道国土空间规划规划公布

规划公布
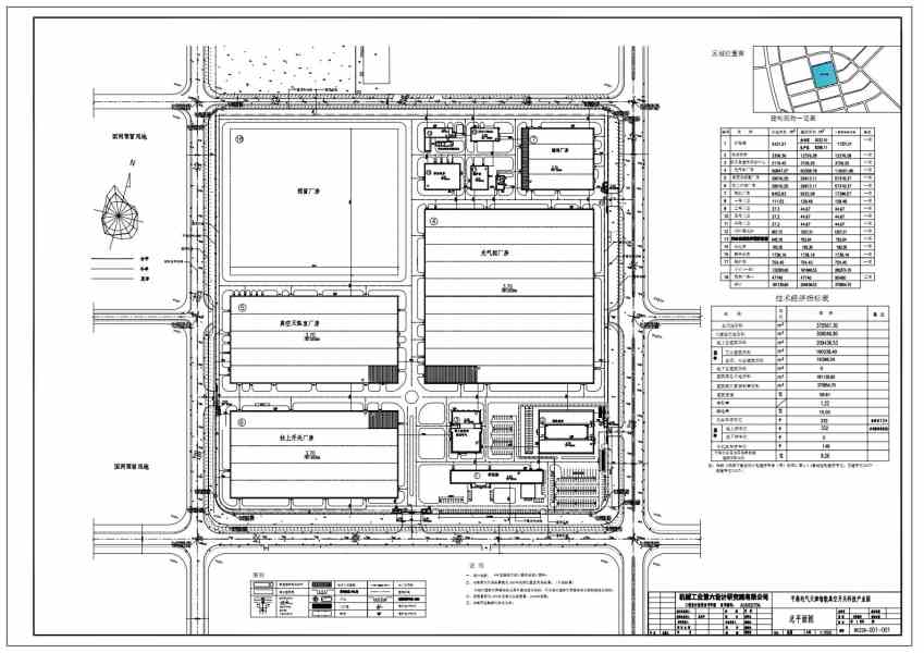
天津市东丽区平高电气天津智能真空开关科技产业园区项目建设工程设计方案总平图公布
来源:东丽 时间:2015-07-08 11:09

天津市规划局东丽区规划分局于20150708日审定了天津平高智能电气有限公司平高电气天津智能真空开关科技产业园区项目建筑方案(2015东丽建案申字0037),依据《中华人民共和国城乡规划法》和《关于印发<天津市城乡规划公开实施方案>的通知》的有关要求,现将该项目建筑方案公布,公布时间为7日。联系方式:东丽规划分局建设管理科,电话:84371577,邮箱dlgh308@163.com

天津市规划局东丽区规划分局

二〇一五年七月八日

附件下载:

相关新闻:

友情链接:
党政机关

关于本站| 版权信息| 网站地图| 使用帮助| 联系我们

主办单位:天津市规划和自然资源局 地址:天津市和平区曲阜道84号 邮编:300042

网站标识码:1200000077 备案编号:津ICP备19001981号 徽标  津公网安备12010102000518号

版权所有:天津市规划和自然资源局

关于本站|版权信息|网站地图|使用帮助|联系我们

主办单位:天津市规划和自然资源局

地址:天津市和平区曲阜道84号

网站标识码:1200000077

备案编号:津ICP备19001981号 版权所有:天津市规划和自然资源局

徽标津公网安备12010102000518号

党政机关