规划公布
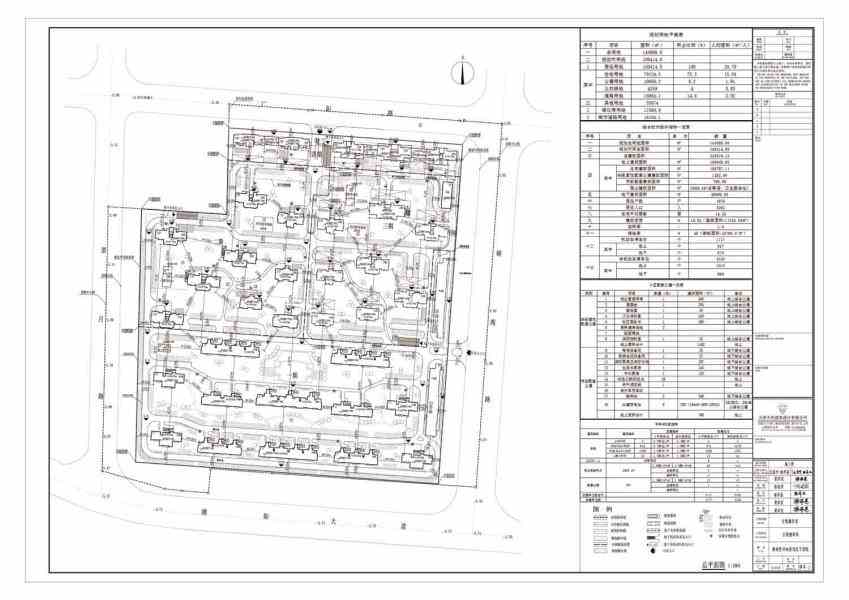
依据《中华人民共和国城乡规划法》的有关要求,现将天津市宝坻区宝境檀香苑住宅小区建筑设计方案公布,公布时间为
7
日
.

附件下载:
国务院相关部委
政府机关
局属单位网站
主办单位:天津市规划和自然资源局 地址:天津市和平区曲阜道84号 邮编:300042
网站标识码:1200000077 备案编号:津ICP备19001981号
津公网安备12010102000518号
版权所有:天津市规划和自然资源局