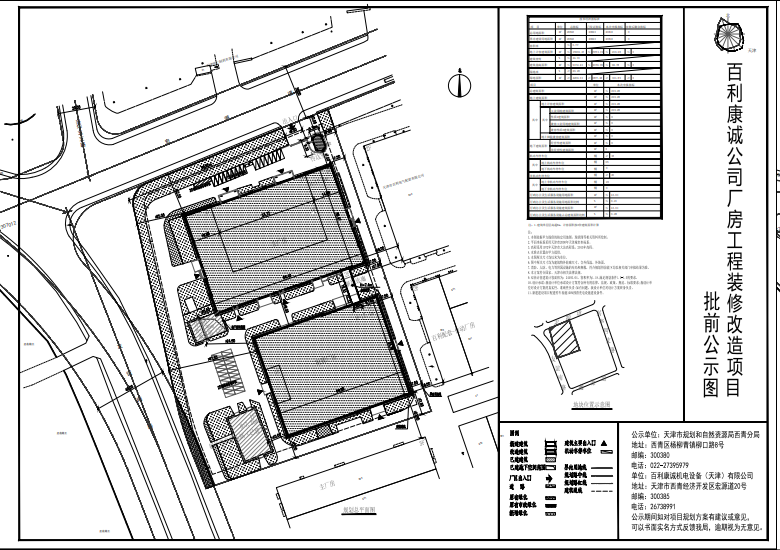
为进一步提高规划设计和管理水平,增加规划审批的科学性、民主性、公开性及透明度,争取社会各界对规划管理工作的理解、支持、监督和指导,加强全社会的城市规划意识,更好地为城市建设、经济发展和社会进步服务,根据有关规定,现将百利康诚公司厂房工程装修改造项目设计方案总平面图进行公示,公示时间为7个工作日(2025年12月5日至2025年12月15日)。公示期间,如对项目规划方案有意见或建议,可以书面实名方式反馈我局或自公示之日起5个工作日内向我局提出书面听证申请,逾期视为无意见。
通讯地址:天津市西青区柳口路8号
联系电话:022-27395979
邮政编码:300380
天津市规划和自然资源局西青分局
2025年12月5日

国务院相关部委
政府机关
局属单位网站
主办单位:天津市规划和自然资源局 地址:天津市和平区曲阜道84号 邮编:300042
网站标识码:1200000077 备案编号:津ICP备19001981号
津公网安备12010102000518号
版权所有:天津市规划和自然资源局