依据《中华人民共和国城乡规划法》和住房和城乡建设部《关于城乡规划公开公示的规定》的有关要求,现将德鑫启航新建工业厂房项目建筑设计方案总平面图进行公示。
公示时间为2025年9月5日至2025年9月15日,为期七个工作日。
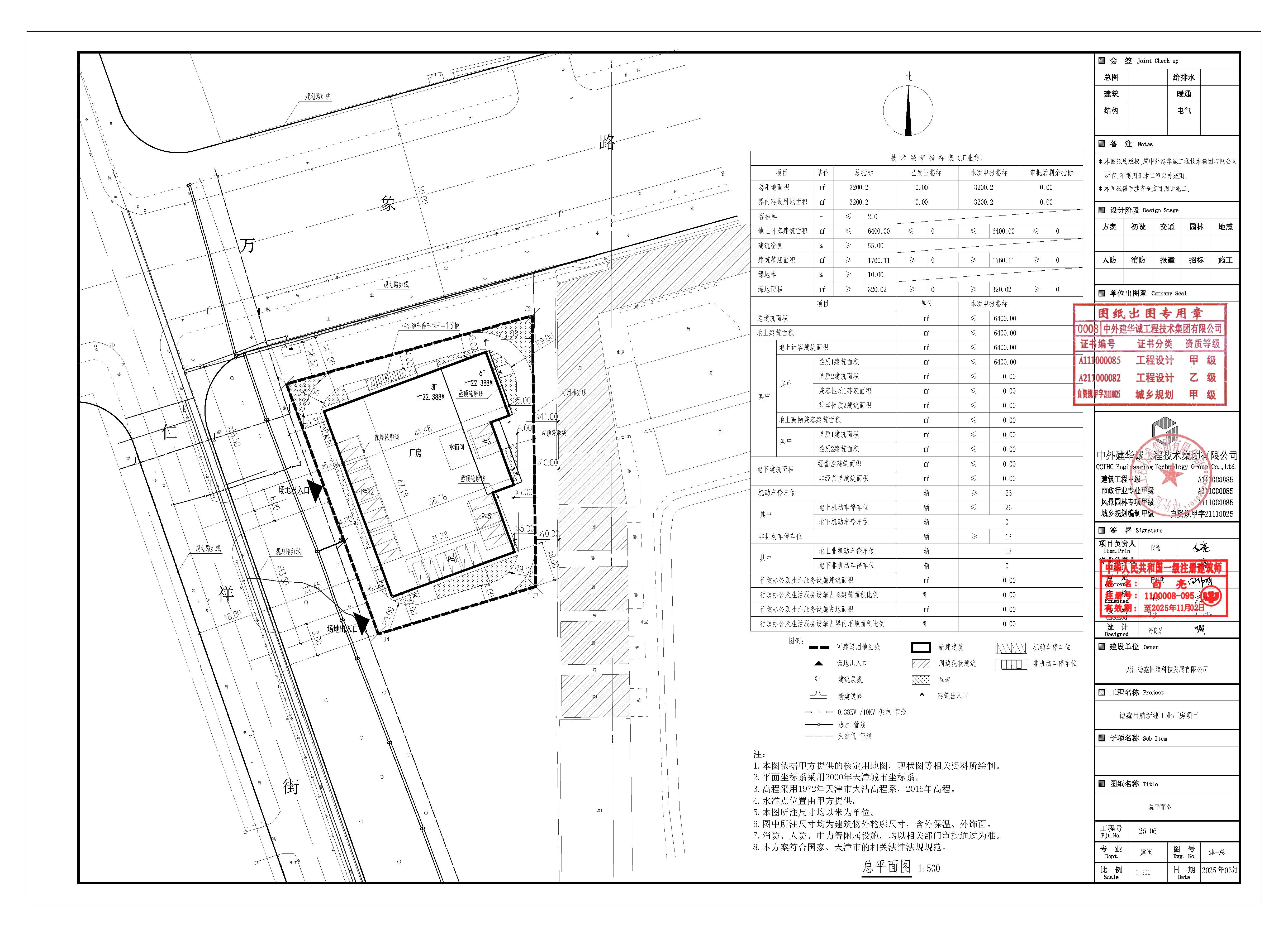
项目名称:德鑫启航新建工业厂房项目
项目位置:滨海新区万象路以南、仁祥街以东
建设单位:天津德鑫恒隆科技发展有限公司
设计单位:中外建华诚工程技术集团有限公司
项目简介:德鑫启航新建工业厂房项目位于滨海新区万象路以南、仁祥街以东,项目占地面积3200.2平方米,总建筑面积约为6400平方米。
公示期间,周边单位及个人如对公示内容发表意见,请以电子邮件或电话方式反馈。
信函请寄:滨海新区于家堡融和路681号宝策大厦裙房行政许可服务中心
邮编:300450
联系人:马立天
联系电话:022-66897974 (接听时间为 8:30—12:00,13:30-17:30)
邮 箱:gzjbhxqgs@163.com
天津市规划和自然资源局滨海新区分局
2025年9月5日
附图:建筑设计方案总平面图

国务院相关部委
政府机关
局属单位网站
主办单位:天津市规划和自然资源局 地址:天津市和平区曲阜道84号 邮编:300042
网站标识码:1200000077 备案编号:津ICP备19001981号
津公网安备12010102000518号
版权所有:天津市规划和自然资源局