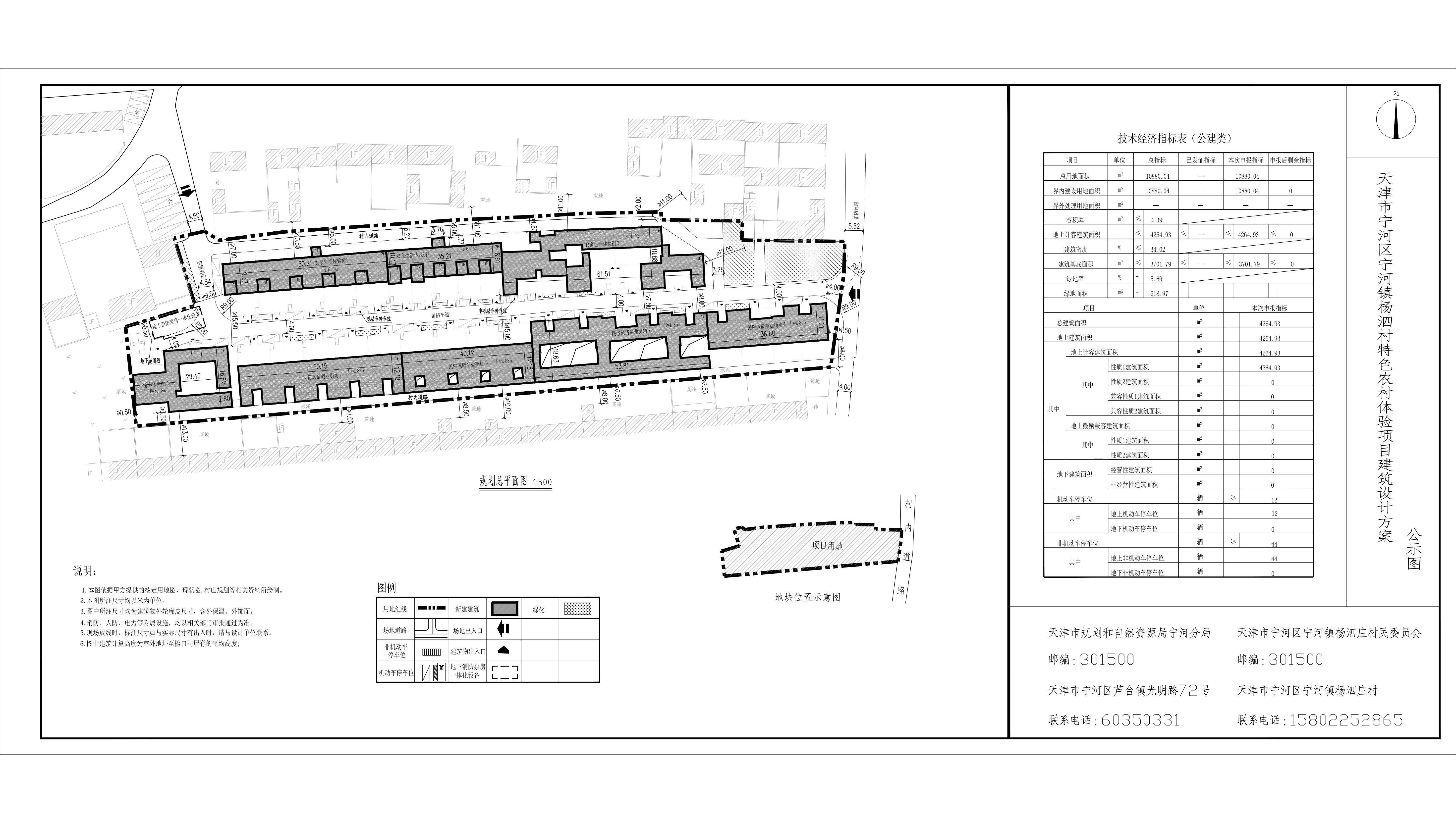
依据《中华人民共和国城乡规划法》、住房城乡建设部《关于城乡规划公开公示的规定》和市规划资源局《天津市乡村建设项目规划许可管理办法》等相关规定要求,该项目的乡村建设规划许可证总平面图进行批前公示,公示时间为7个工作日。
建设单位名称:天津市宁河区宁河镇杨泗庄村民委员会
项目名称:天津市宁河区宁河镇杨泗村特色农村体验项目
建设规模:4264.93㎡(地上部分)0㎡(地下部分)
公示日期:2025年8月25日——2025年9月2日(7个工作日)
公示部门:天津市规划和自然资源局宁河分局
地址: 天津市宁河区芦台镇光明路72号
邮编: 301500
联系方式:60350331

国务院相关部委
政府机关
局属单位网站
主办单位:天津市规划和自然资源局 地址:天津市和平区曲阜道84号 邮编:300042
网站标识码:1200000077 备案编号:津ICP备19001981号
津公网安备12010102000518号
版权所有:天津市规划和自然资源局