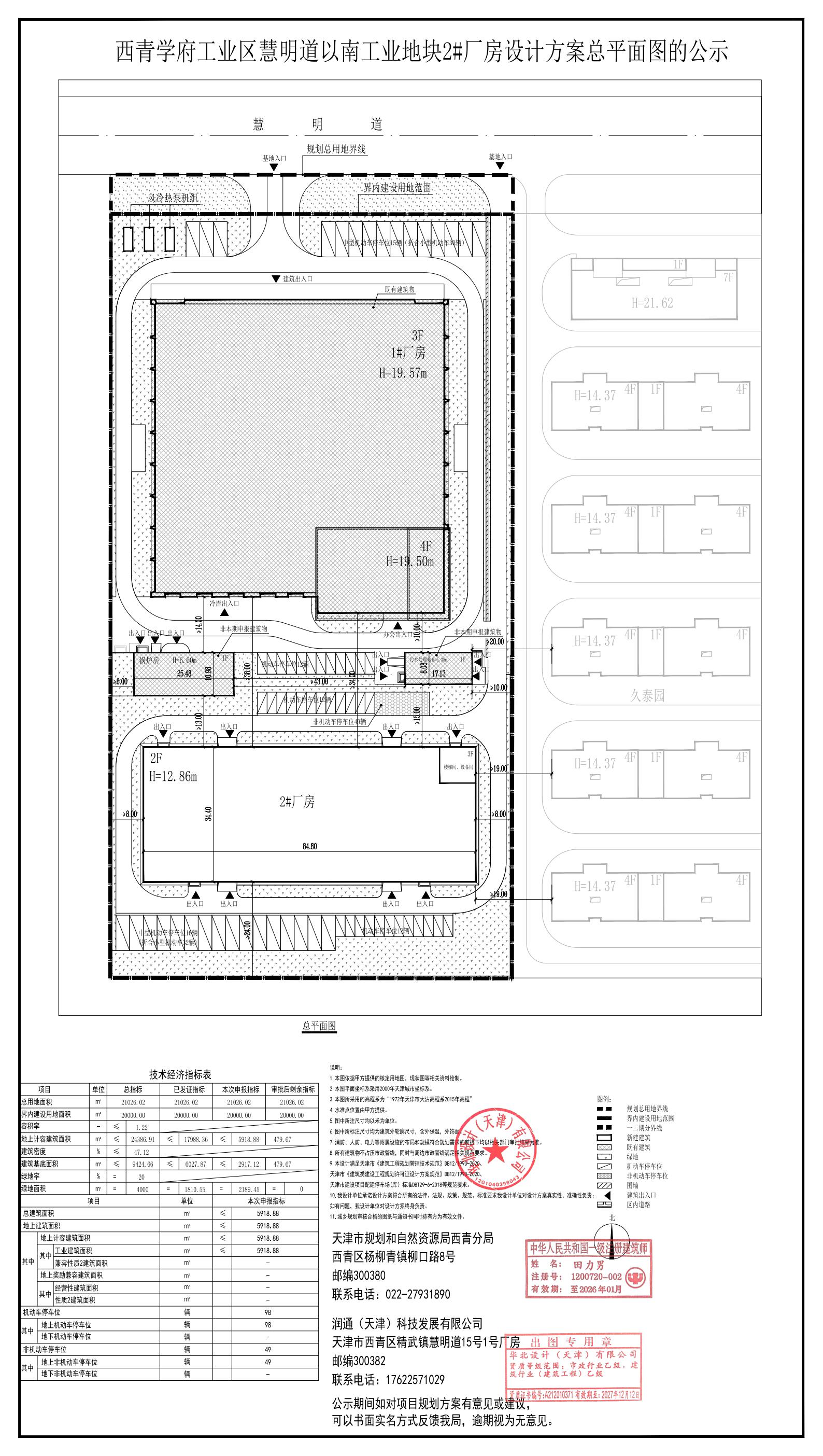
为进一步提高规划设计和管理水平,增加规划审批的科学性、民主性、公开性及透明度,争取社会各界对规划管理工作的理解、支持、监督和指导,加强全社会的城市规划意识,更好地为城市建设、经济发展和社会进步服务,根据有关规定,现将西青学府工业区慧明道以南工业地块2#厂房项目设计方案总平面图进行公示,公示时间为7个工作日(2025年4月21日至2025年4月28日)。公示期间,如对项目规划方案有意见或建议,可以书面实名方式反馈我局或自公示之日起5个工作日内向我局提出书面听证申请,逾期视为无意见。
通讯地址:天津市西青区柳口路8号
联系电话:022-27395979
邮政编码:300380
天津市规划和自然资源局西青分局
2025年4月21日

国务院相关部委
政府机关
局属单位网站
主办单位:天津市规划和自然资源局 地址:天津市和平区曲阜道84号 邮编:300042
网站标识码:1200000077 备案编号:津ICP备19001981号
津公网安备12010102000518号
版权所有:天津市规划和自然资源局