依据《中华人民共和国城乡规划法》和住房和城乡建设部《关于城乡规划公开公示的规定》的有关要求,现将新建检测用房项目建筑设计方案总平面图进行公示。
公示时间为2025年4月2日至2025年4月11日,为期七个工作日。
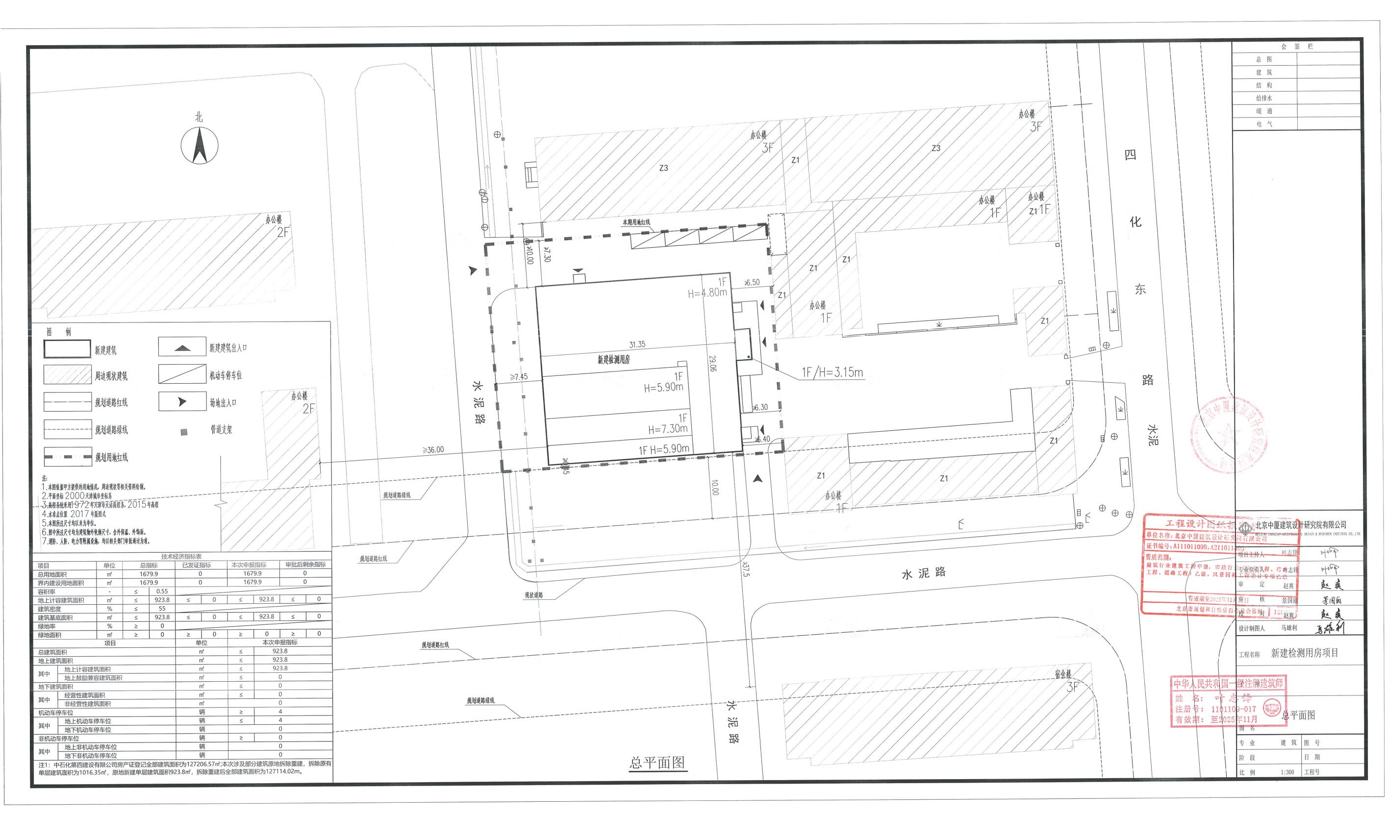
项目名称:新建检测用房项目
项目位置:天津市滨海新区(大港)世纪大道180号
建设单位:中石化第四建设有限公司
设计单位:北京中厦建筑设计研究院有限公司
项目简介(变更说明):1.因施工图深化设计,取消建筑东侧主要出入口原设计造型,增加门斗,面积相应增加、对建筑物长宽尺寸进行调整,由31.40m*29.11m调整为31.35m*29.06m,建筑面积由912.13㎡调整为923.8㎡,调整后符合规划条件,经济技术指标表中容积率由0.54调整为0.55;建筑密度由54.3%调整为55%;
2.因施工图深化设计,对室内外高差进行调整,由450mm调整为150mm;
3.因施工图深化设计,取消北侧坡道;
4.因施工图深化设计,建筑高度由7.6m调整为7.3m。
5.因设计笔误,调整总平图中南侧建筑间距,由6.5m调整为6.4m,调整后满足规范要求;
6.因施工图深化设计,将机动车停车位由建筑西侧,调整至北侧;
公示期间,周边单位及个人如对公示内容发表意见,请以电子邮件或电话方式反馈。
信函请寄:滨海新区于家堡融和路681号宝策大厦裙房行政许可服务中心
邮编:300450
联系人:邢燕
联系电话:022-66897974 (接听时间为 8:30—12:00,13:30-17:30)
邮 箱:gzjbhxqgs@163.com
天津市规划和自然资源局滨海新区分局
2025年4月2日
附图:建筑设计方案总平面图

国务院相关部委
政府机关
局属单位网站
主办单位:天津市规划和自然资源局 地址:天津市和平区曲阜道84号 邮编:300042
网站标识码:1200000077 备案编号:津ICP备19001981号
津公网安备12010102000518号
版权所有:天津市规划和自然资源局