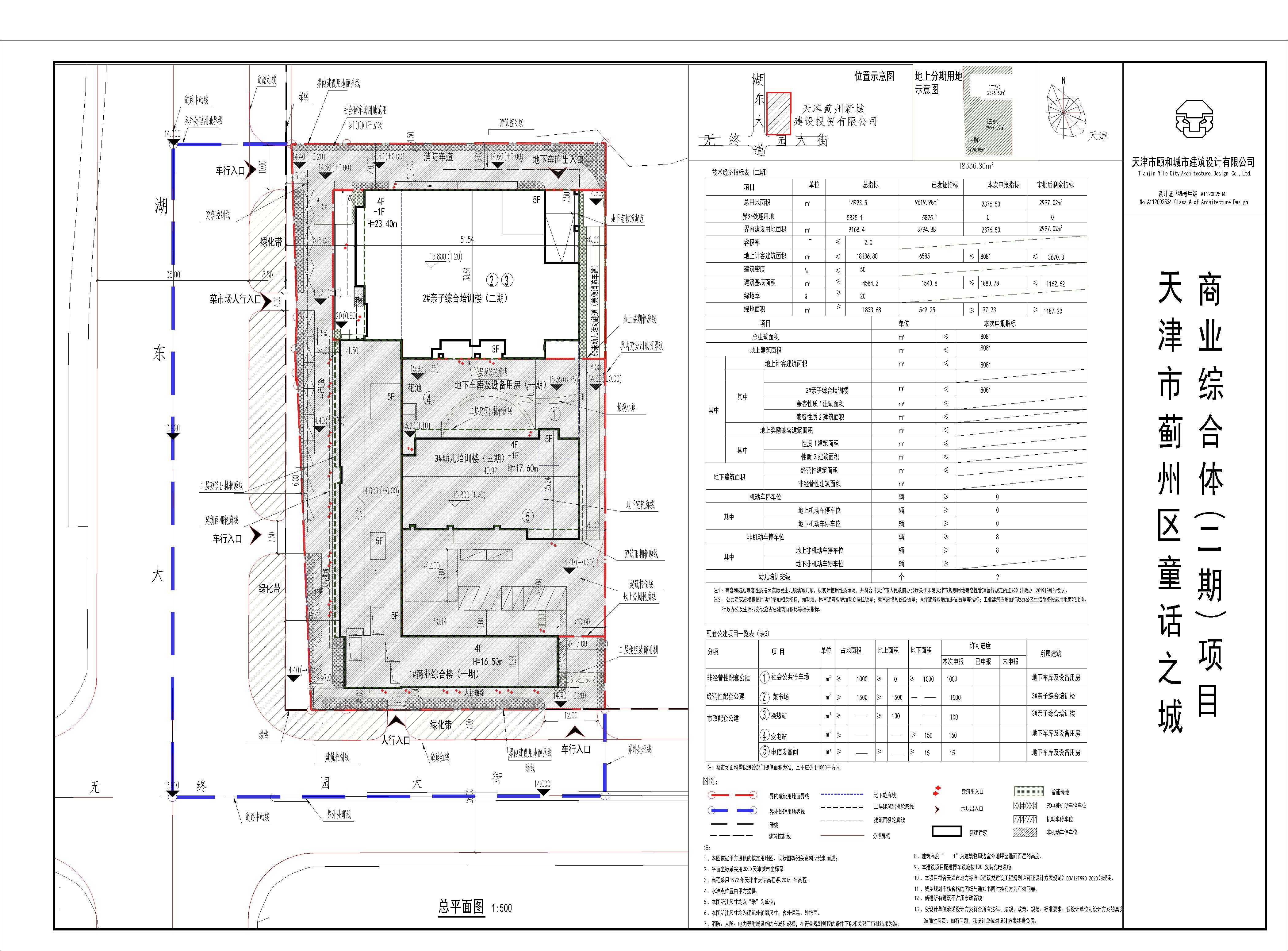
根据《中华人民共和国城乡规划法》、《中华人民共和国行政许可法》,经审核,现将天津市童话之城房地产开发有限责任公司位于蓟州区无终园大街北侧,湖东大道东侧地块童话之城商业综合体(二期)项目建设工程设计方案草案予以批前公示,公示期为7工作日,自2025年2月6日至2025年2月14日为止。如对本设计方案草案不同意见,请于2025年2月14日之前以书面形式将反映情况寄(送)到建设单位、设计单位、天津市规划和自然资源局蓟州分局。单位反映情况请加盖公章,个人反映情况请签署真实姓名和工作单位,并留下联系电话、地址、邮编,以便及时与您联系。
|
来信请寄 |
天津市童话之城房地产开发有限责任公司 |
天津市颐和城市建筑设计有限公司 |
天津市规划和自然资源局蓟州分局 |
|
地址 |
津市蓟州区渔阳镇幸福时代花园49号楼 |
天津市南开区凌奥创意产业园三期D栋 |
蓟州区渔阳镇迎宾大街18号 |
|
邮编 |
301900 |
300381 |
301900 |
|
电话 |
82898063 |
23697978 |
22870887 |
天津市规划和自然资源局蓟州分局
2025年2月6日

国务院相关部委
政府机关
局属单位网站
主办单位:天津市规划和自然资源局 地址:天津市和平区曲阜道84号 邮编:300042
网站标识码:1200000077 备案编号:津ICP备19001981号
津公网安备12010102000518号
版权所有:天津市规划和自然资源局