依据《中华人民共和国城乡规划法》、住房和城乡建设部《关于城乡规划公开公示的规定》等相关规定要求,现将该项目建设工程设计方案总平面图进行公示,内容如下:
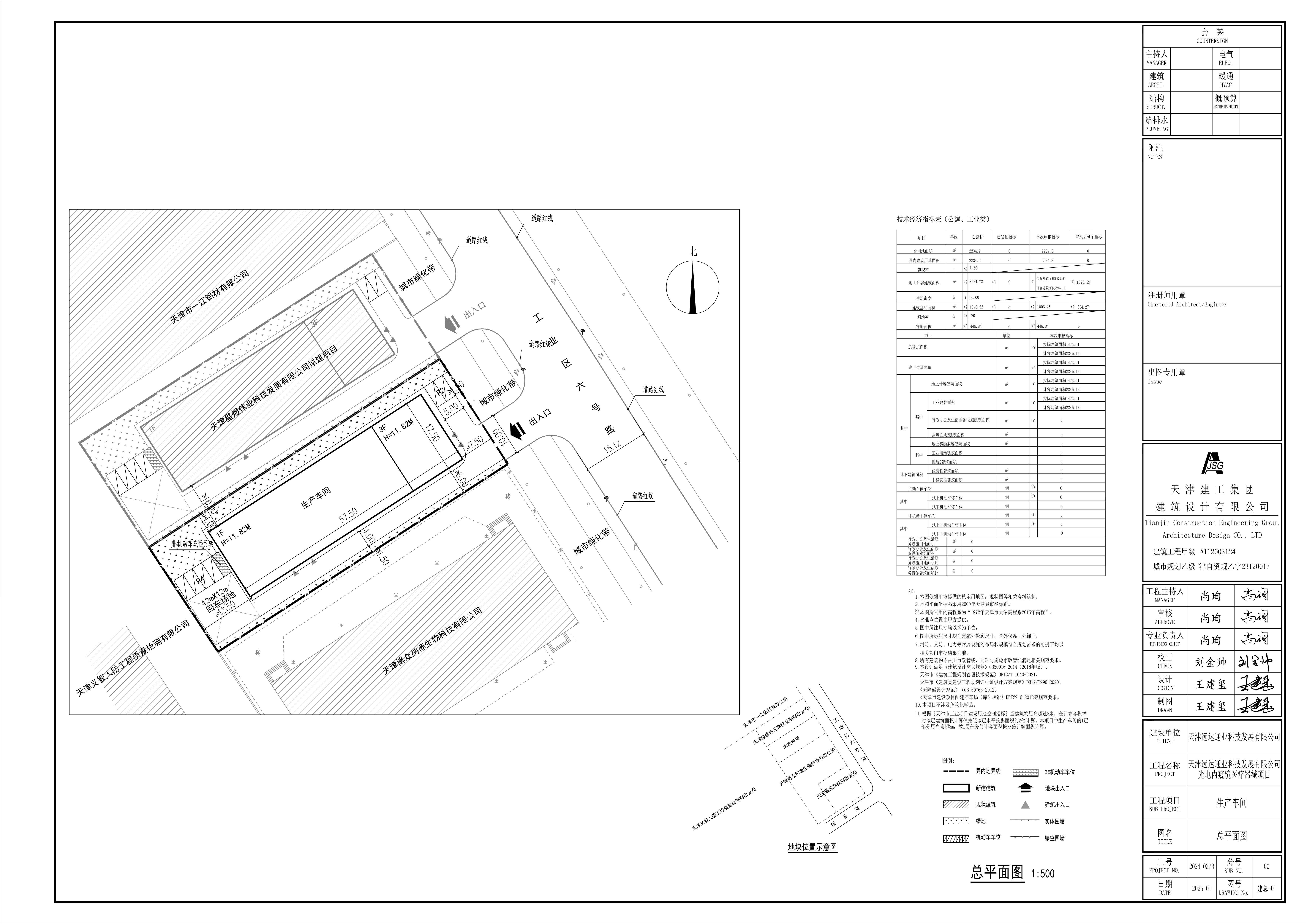
项目名称:天津远达通业科技发展有限公司光电内窥镜医疗器械项目
建设单位:天津远达通业科技发展有限公司
公示时间:2025年1月16日至2025年1月24日(7个工作日)
公示地点:项目现场、市规划资源局网站、津南区人民政府网站
公示内容:建设工程设计方案总平面图
组织单位:天津市规划和自然资源局津南分局
(天津市津南区咸水沽镇南环路3号)
联系部门:建设项目管理科
联系电话:022-88510862
另依据《中华人民共和国城乡规划法》等相关规定要求,拟定于2025年1月24上午10点在天津市规划和自然资源局津南分局(南环路3号)一楼接待室召开相关利害关系人意见座谈会。
2025年1月16日
公示期间,欢迎广大群众提出宝贵意见,逾期视为无意见。
备注:最终总平面图以核发建设工程规划许可证附图为准。

国务院相关部委
政府机关
局属单位网站
主办单位:天津市规划和自然资源局 地址:天津市和平区曲阜道84号 邮编:300042
网站标识码:1200000077 备案编号:津ICP备19001981号
津公网安备12010102000518号
版权所有:天津市规划和自然资源局