
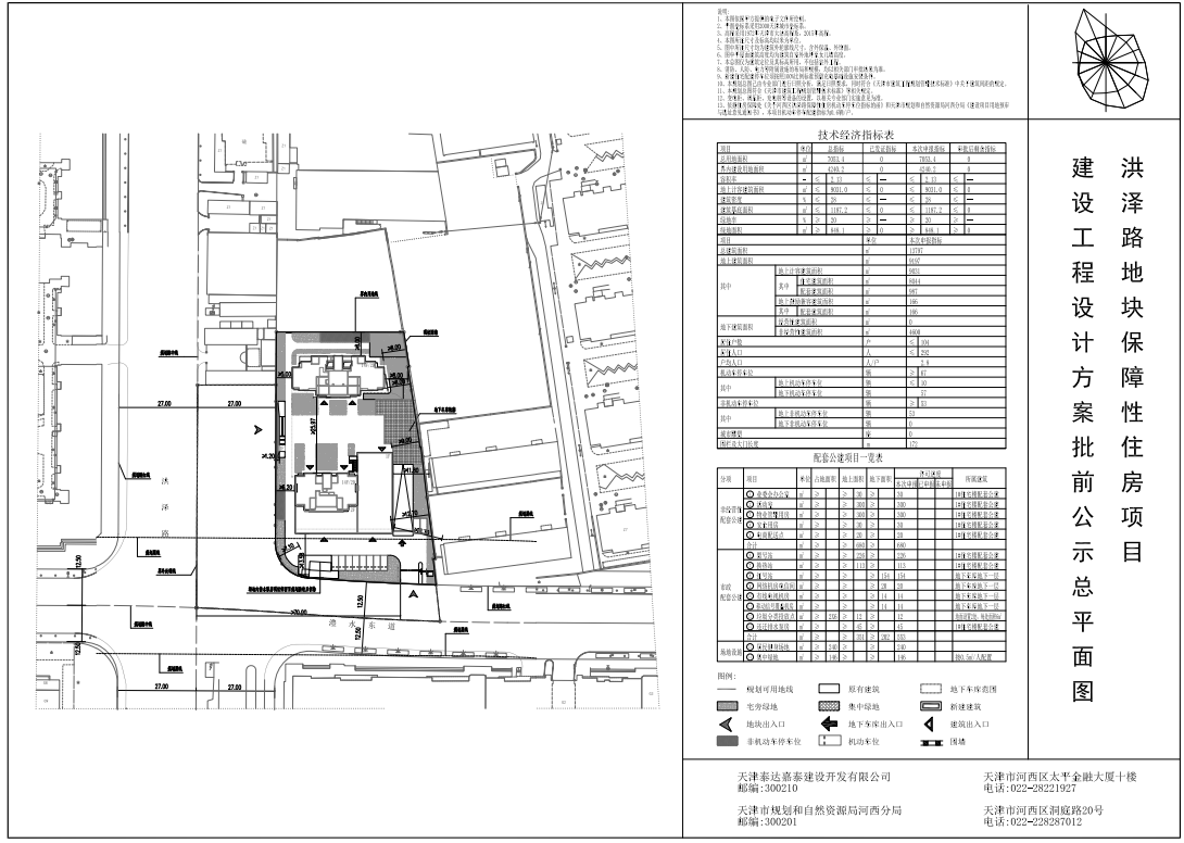
依据《中华人民共和国城乡规划法》、《关于城乡规划公开公示的规定》有关要求,现将洪泽路地块保障性住房项目建设工程设计方案总平面图予以批前公示,公示期为2024年12月17日至2024年12月25日。如有意见,请于公示期内反馈,逾期视为无意见,联系方式如下:
|
名称 |
地址 |
联系电话 |
电子邮箱 | |
|
建设单位 |
天津泰达嘉泰建设开发有限公司 |
河西区黑牛城道13号太平金融大厦1001 |
28221927 |
ctbzf@teda.com.cn |
|
设计单位 |
天津市建筑设计研究院有限公司 |
天津市河西区气象台路95号 |
23543241 |
HZLDKXM@163.com |
|
审批单位 |
市规划资源局河西分局 |
河西区洞庭路20号 |
28287020 |
hxqghzrzyj@tj.gov.cn |
|
注:对于设计方案的建筑间距、日照影响等技术标准问题,建议咨询并反馈建设单位和设计单位。对于规划审批流程问题,建议咨询并反馈审批单位。 | ||||
国务院相关部委
政府机关
局属单位网站
主办单位:天津市规划和自然资源局 地址:天津市和平区曲阜道84号 邮编:300042
网站标识码:1200000077 备案编号:津ICP备19001981号
津公网安备12010102000518号
版权所有:天津市规划和自然资源局