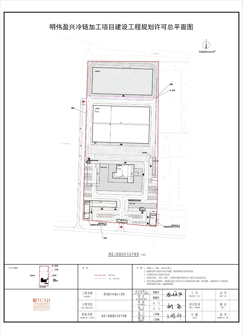
根据《中华人民共和国城乡规划法》、《中华人民共和国行政许可法》,经审核,现将位于天津市蓟州区尤古庄镇北周庄村的明伟盈兴冷链加工项目建设工程设计方案草案予以批前公示,公示期为7个工作日,自2024年6月26日至2024年7月4日为止。如对本设计方案草案有不同意见,请于2024年7月4日之前以书面形式将反映情况寄(送)到尤古庄镇北周庄村1区9排10号07室、天津市正石建筑设计有限公司、天津市规划和自然资源局蓟州分局。单位反映情况请加盖公章,个人反映情况请签署真实姓名和工作单位 ,并留下联系电话、地址、邮编,以便及时与您联系。
|
来信请寄 |
天津明伟盈兴食品销售有限公司 |
天津市正石建筑设计有限公司 |
天津市规划和自然资源局蓟州分局 |
|
地址 |
尤古庄镇北周庄村1区9排10号07室 |
武清区馨凯广场5号楼301室 |
蓟州区渔阳镇迎宾大街18号 |
|
邮编 |
301900 |
301900 |
301900 |
|
电话 |
13132177977 |
15342120785 |
29188155 |
2024年6月26 日

国务院相关部委
政府机关
局属单位网站
主办单位:天津市规划和自然资源局 地址:天津市和平区曲阜道84号 邮编:300042
网站标识码:1200000077 备案编号:津ICP备19001981号
津公网安备12010102000518号
版权所有:天津市规划和自然资源局