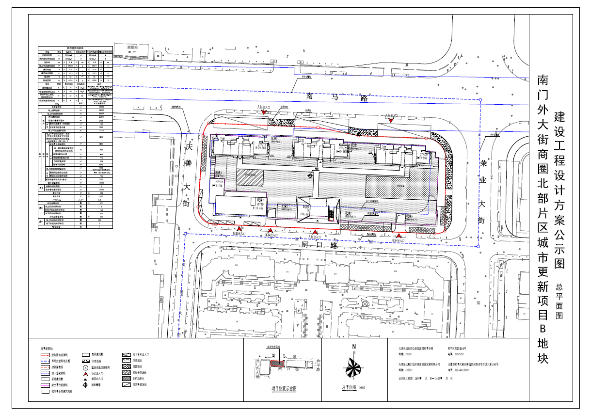
南门外大街商圈北部片区城市更新项目B地块建设工程规划许可证设计方案总平面图公示
按照《中华人民共和国城乡规划法》要求,现将南门外大街商圈北部片区城市更新项目B地块建设工程规划许可证设计方案总平面图予以公示,公示时间为2024年5月10日——2024年5月17日。
联系电话:022-23308213
联系地址:和平区岳阳道88号天津市规划和自然资源局和平分局

国务院相关部委
政府机关
局属单位网站
主办单位:天津市规划和自然资源局 地址:天津市和平区曲阜道84号 邮编:300042
网站标识码:1200000077 备案编号:津ICP备19001981号
津公网安备12010102000518号
版权所有:天津市规划和自然资源局