依据《中华人民共和国城乡规划法》和住房和城乡建设部《关于城乡规划公开公示的规定》的有关要求,现将任春恒业理货用房装修改造项目建筑设计方案总平面图进行公示。
公示时间为2024年8月8日至2024年8月16日,为期七个工作日。
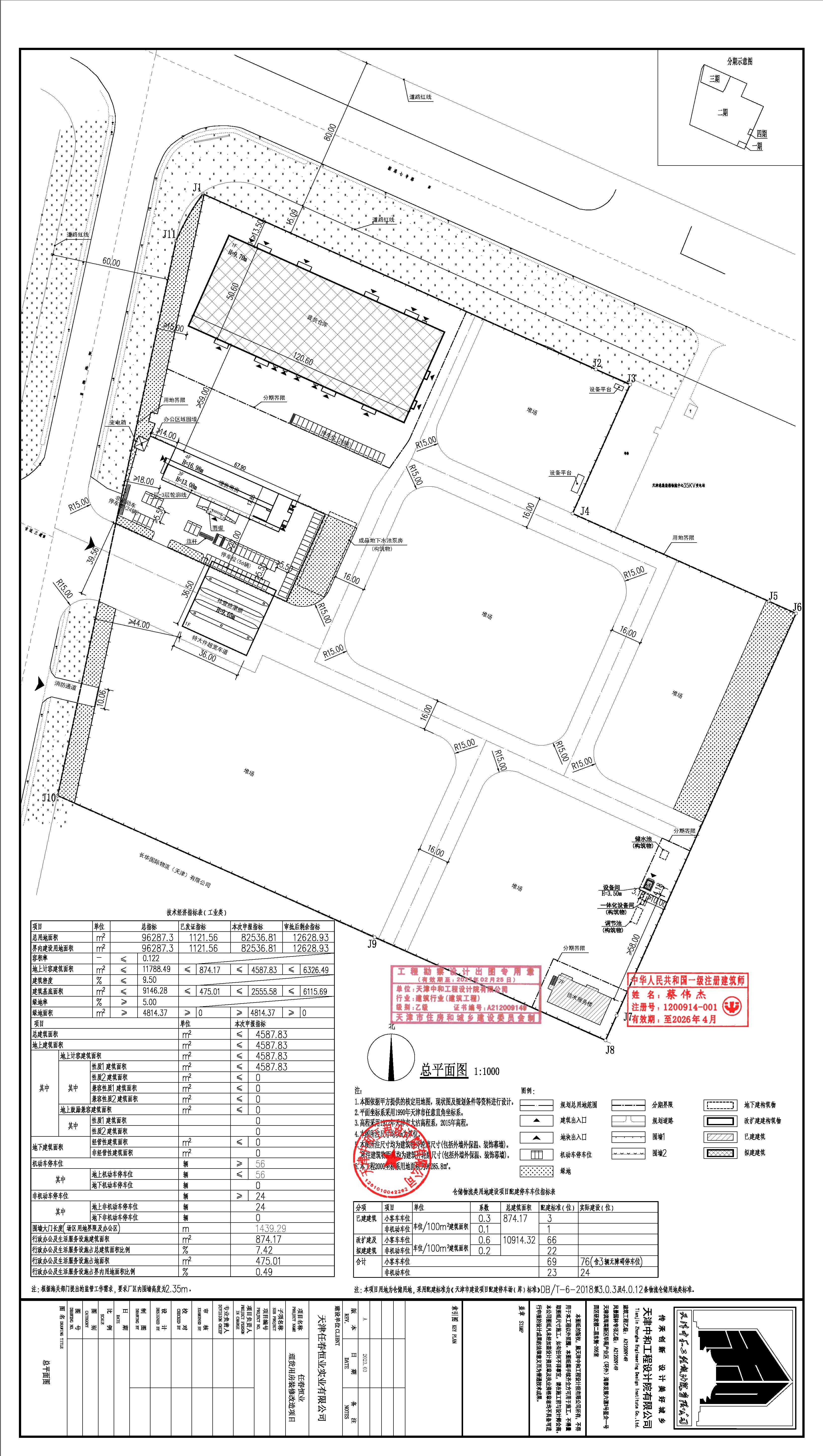
项目名称:任春恒业理货用房装修改造项目
项目位置:天津滨海新区新港街道跃进路3658号
建设单位:天津任春恒业实业有限公司
设计单位:天津中和工程设计院有限公司
项目简介(变更说明):本工程用地面积96287.30㎡,建筑面积11788.49㎡,建筑基底面积9146.28㎡,绿地面积4814.37㎡,建筑密度9.5%。
变更说明:1、结合现场实际现状对场区西侧围墙进行调整,由原红线位置调整为绿化带内侧边界位置,围墙长度为1439.29m;2、为方便区分围墙,新增图例围墙2,原图例围墙调整为围墙1,并补围墙1和2的彩色立面图;3、根据后期使用需求,删除理货用房南侧围墙大门,在西南侧入口增加大门,并补大门彩色立面图;4、因设计单位失误,将地上机动车停车位填写为总车位数,故本次申请将地上机动车停车位由76个调整为56个。
公示期间,周边单位及个人如对公示内容发表意见,请以电子邮件或电话方式反馈。
信函请寄:滨海新区于家堡融和路681号宝策大厦裙房行政许可服务中心
邮编:300450
联系人:许冬雪
联系电话:022-66897974 (接听时间为 8:30—12:00,14:30-17:30)
邮 箱:gzjbhxqgs@163.com
天津市规划和自然资源局滨海新区分局
2024年8月8日
附图:建筑设计方案总平面图






津公网安备12010102000518号