依据《中华人民共和国城乡规划法》和住房和城乡建设部《关于城乡规划公开公示的规定》的有关要求,现将欣嘉园12号地一期项目建筑设计方案总平面图进行公示。
公示时间为2023年5月18日至2023年5月26日,为期七个工作日。
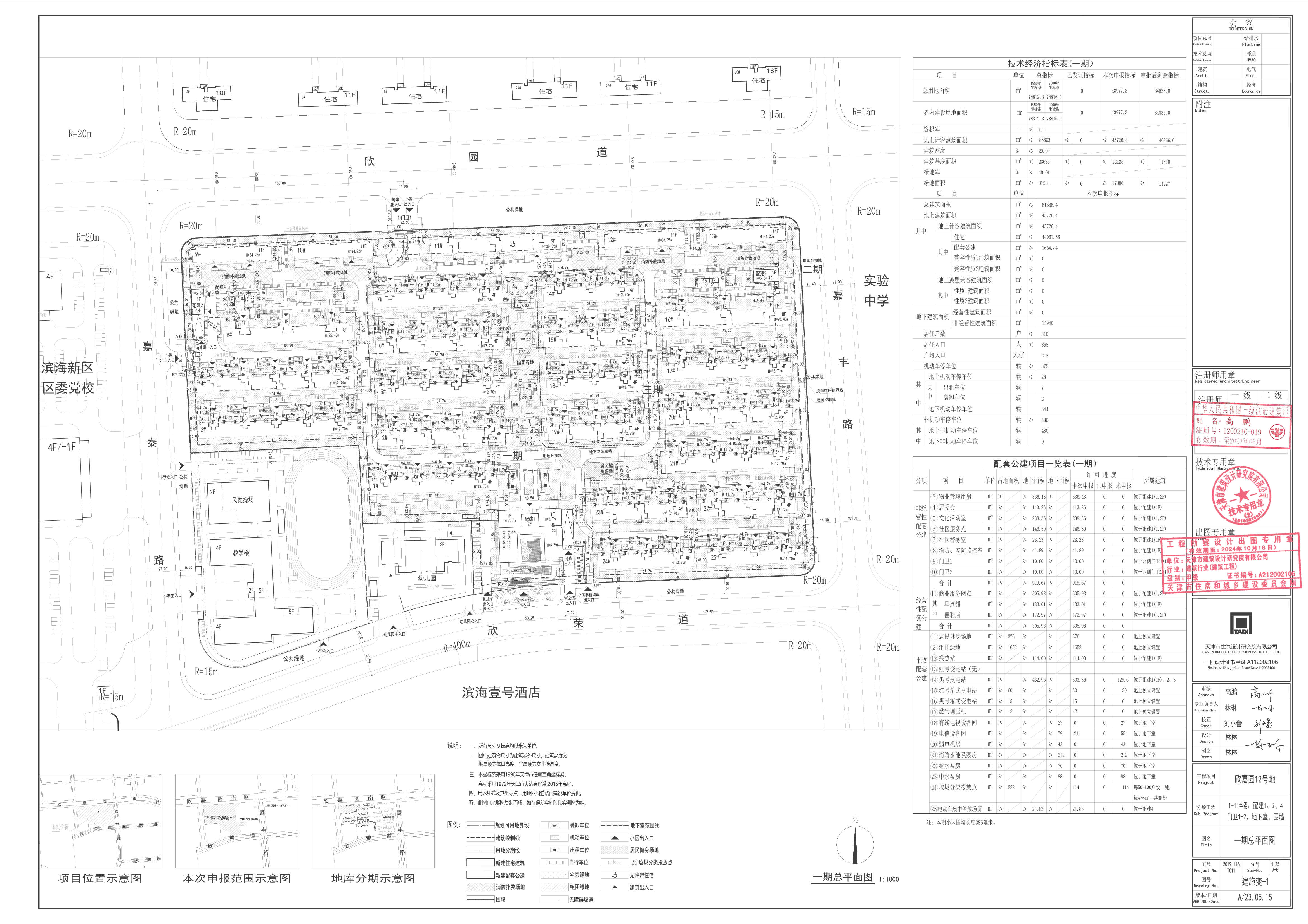
项目名称:欣嘉园12号地一期
项目位置:天津市滨海新区黄港欣嘉园片区
建设单位:天津滨海新区建投房地产开发有限公司
设计单位:天津市建筑设计研究院有限公司
项目简介(变更说明):该项目本期用地面积78812.3平方米,总建筑面积61666.4平方米,其中地上建筑面积45726.4平方米,地下建筑面积15940平方米。
拟进行如下调整:
1、因开发需要,总图补充1,2,3期分期界线及分期指标,分期后因消防需要增加回车场地及相应调整非机动车位位置。1、2、3期总指标中,地下车库面积31500平方米调整至31780平方米。
2、因电力部门二次深化设计,配建1入口坡道调整,调整配建2、配建3出入口位置。 1#楼南侧2处箱变位置向西偏移, 13#楼南侧2处箱变位置向西偏移。
3、因景观图纸深化设计,进行如下变更:
(1)调整非机动车位位置,调整后车位总数保持不变
(2)调整宅前路形状及走向。
(3)补充建筑入口处无障碍坡道。
公示期间,周边单位及个人如对公示内容发表意见,请以电子邮件或电话方式反馈。
信函请寄:滨海新区于家堡融和路681号宝策大厦裙房行政许可服务中心
邮编:300450
联系人:张升鹏
联系电话:022-66897974 (接听时间为 8:30—12:00,13:30-17:30)
邮 箱:gzjbhxqgs@163.com
天津市规划和自然资源局滨海新区分局
2023年5月18日
附图:建筑设计方案总平面图






津公网安备12010102000518号