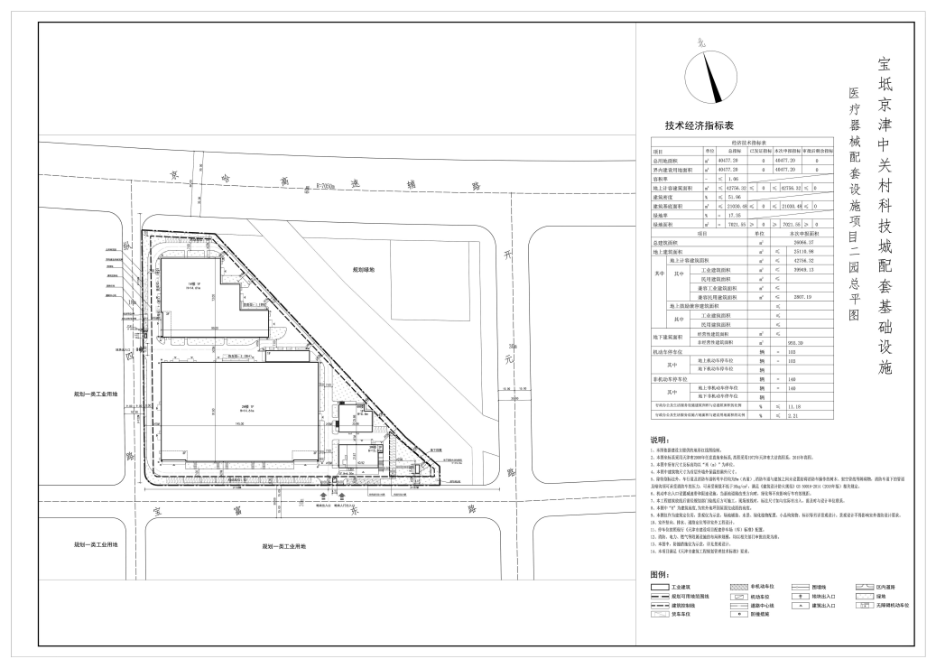
依据《中华人民共和国城乡规划法》和住房城乡建设部《关于城乡规划公开公示的规定》等相关规定要求,现将天津华城建业有限公司医疗器械配套设施二园1#楼、2#楼、3#楼、4#楼、门卫1、门卫2、地下消防水池与泵房项目建设工程设计方案总平面图公示,公示时间为7个工作日( 从2023年5月16日至2023年5月25日)。
建议意见反馈方式:可通过电子邮箱或信件反馈
电子邮箱gzjbdfjjgk@tj.gov.cn
邮寄地址:天津市宝坻区潮阳大道北侧(天津市规划和自然资源局宝坻分局)
邮政编码:301800
征求意见时间为7个工作日,逾期视为无意见。






津公网安备12010102000518号