依据《中华人民共和国城乡规划法》和住房和城乡建设部《关于城乡规划公开公示的规定》的有关要求,现将滨海新区中心商务商业区东沽还迁房地块六1#、2#V变电站工程项目建筑设计方案总平面图进行公示。
公示时间为2023年02月24日至2023年03月06日,为期七个工作日。
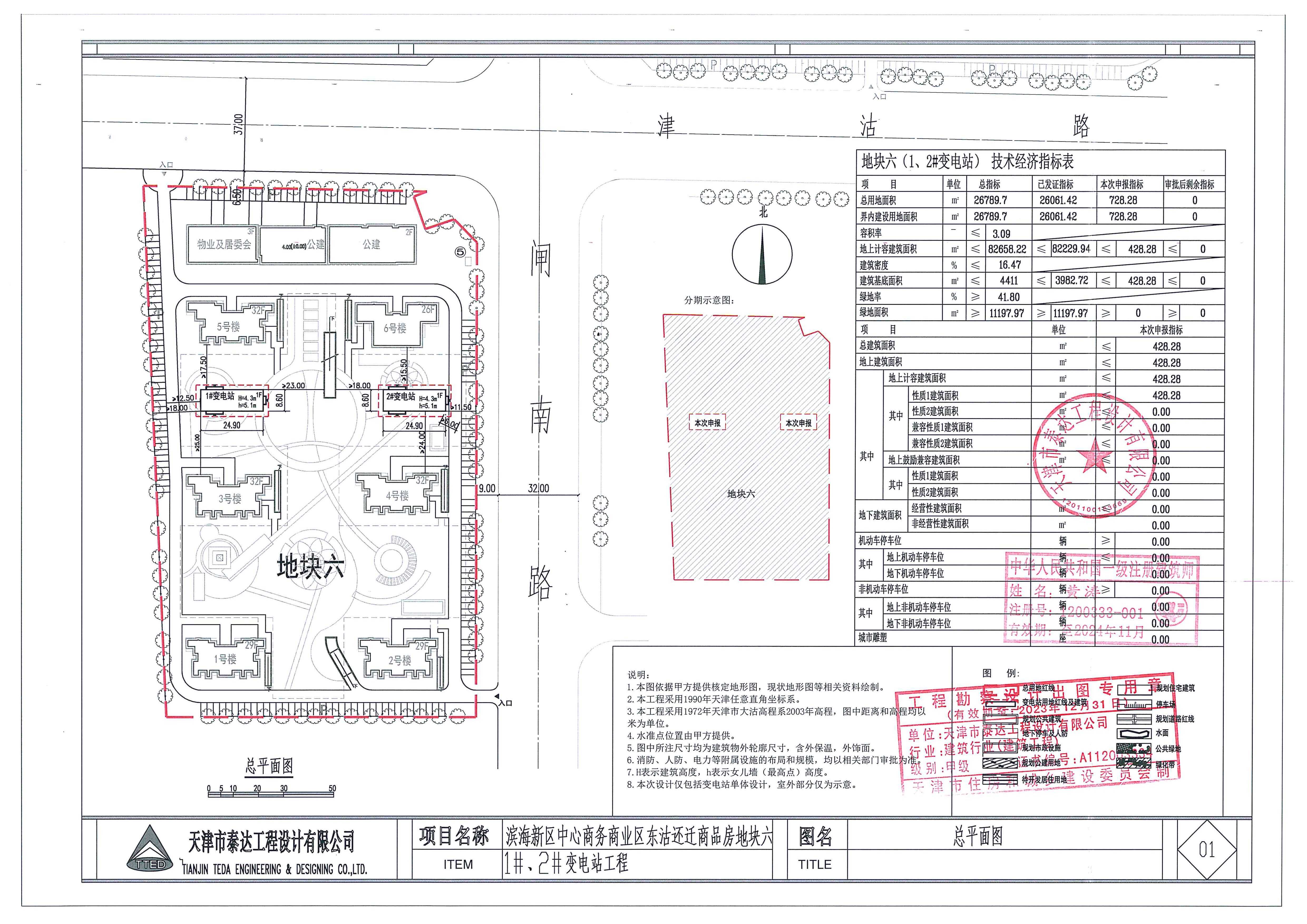
项目名称:滨海新区中心商务商业区东沽还迁房地块六1#、2#V变电站工程
项目位置:滨海新区塘沽东沽地区
建设单位:天津海河下游开发有限公司
设计单位:天津市泰达工程设计有限公司
项目简介(变更说明):该项目本期用地面积728.28平方米,总建筑面积428.28平方米,其中地上建筑面积428.28平方米,地下建筑面积0平方米。
拟进行如下调整:
1、总图用地红线及坐标系调整为天津2000城市坐标系,并对各个变电站圈定独立的用地范围。
2、调整1、2#变电站定位。
3、调整效果图墙面颜色,完善颜色材料标注。
公示期间,周边单位及个人如对公示内容发表意见,请以电子邮件或电话方式反馈。
信函请寄:滨海新区于家堡融和路681号宝策大厦裙房行政许可服务中心
邮编:300450
联系人:张升鹏
联系电话:022-66897974 (接听时间为 8:30—12:00,13:00-17:00)
邮 箱:gzjbhxqgs@163.com
天津市规划和自然资源局滨海新区分局
2023年02月24日
附图:建筑设计方案总平面图






津公网安备12010102000518号