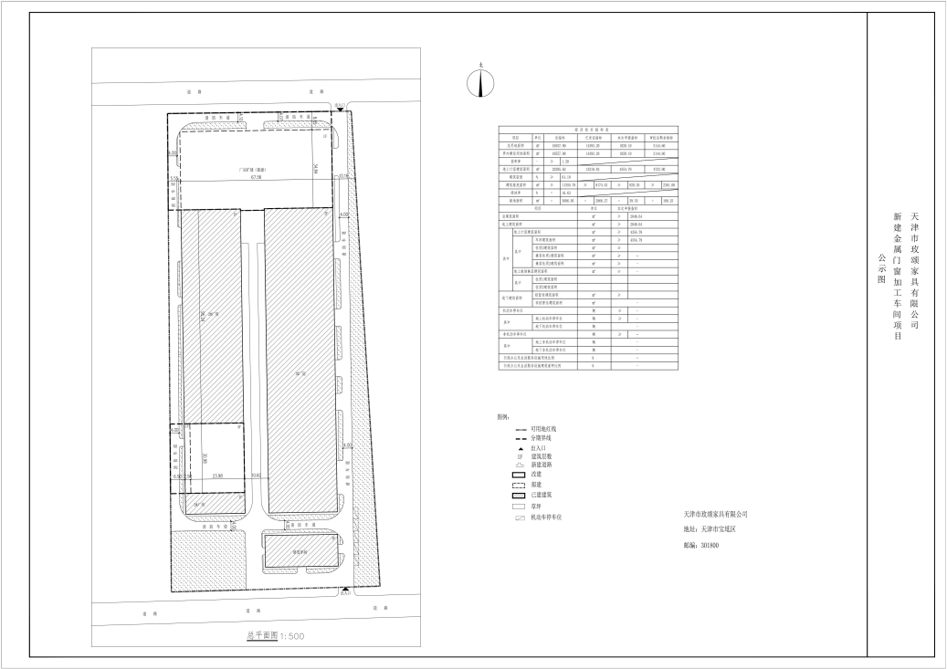
依据《中华人民共和国城乡规划法》和住房城乡建设部《关于城乡规划公开公示的规定》等相关规定要求,现将天津市玫颂家具有限公司厂房改建项目建设工程设计方案总平面图公示,公示时间为7个工作日( 从2023年1月3日至2023年1月11日)。
建议意见反馈方式:可通过电子邮箱或信件反馈
电子邮箱gzjbdfjjgk@tj.gov.cn
邮寄地址:天津市宝坻区潮阳大道北侧(天津市规划和自然资源局宝坻分局)
邮政编码:301800
征求意见时间为7个工作日,逾期视为无意见。

依据《中华人民共和国城乡规划法》和住房城乡建设部《关于城乡规划公开公示的规定》等相关规定要求,现将天津市玫颂家具有限公司厂房改建项目建设工程设计方案总平面图公示,公示时间为7个工作日( 从2023年1月3日至2023年1月11日)。
建议意见反馈方式:可通过电子邮箱或信件反馈
电子邮箱gzjbdfjjgk@tj.gov.cn
邮寄地址:天津市宝坻区潮阳大道北侧(天津市规划和自然资源局宝坻分局)
邮政编码:301800
征求意见时间为7个工作日,逾期视为无意见。

国务院相关部委
政府机关
局属单位网站
主办单位:天津市规划和自然资源局 地址:天津市和平区曲阜道84号 邮编:300042
网站标识码:1200000077 备案编号:津ICP备19001981号
津公网安备12010102000518号
版权所有:天津市规划和自然资源局