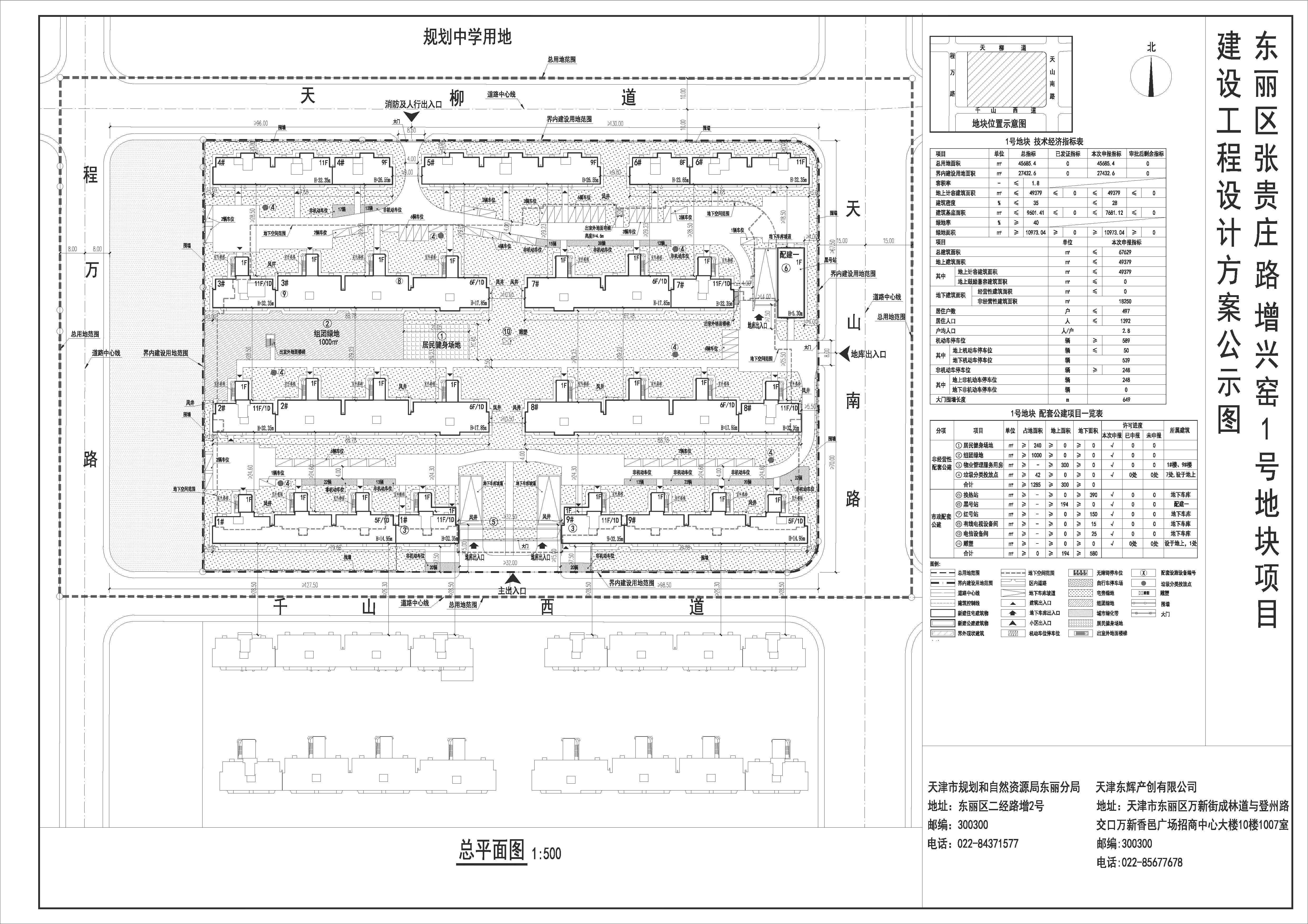
天津市规划和自然资源局东丽分局,依据《中华人民共和国城乡规划法》的有关要求,现将东丽区张贵庄路增兴窑1号地块项目建筑工程设计方案总平面图进行公示,公示期为7个工作日。意见反馈请回复东丽分局建管科。
通讯地址:天津市东丽开发区二经路增二号
联系电话:022-84371577
邮政编码:300300

天津市规划和自然资源局东丽分局
2022年11月30日
天津市规划和自然资源局东丽分局,依据《中华人民共和国城乡规划法》的有关要求,现将东丽区张贵庄路增兴窑1号地块项目建筑工程设计方案总平面图进行公示,公示期为7个工作日。意见反馈请回复东丽分局建管科。
通讯地址:天津市东丽开发区二经路增二号
联系电话:022-84371577
邮政编码:300300

天津市规划和自然资源局东丽分局
2022年11月30日
国务院相关部委
政府机关
局属单位网站
主办单位:天津市规划和自然资源局 地址:天津市和平区曲阜道84号 邮编:300042
网站标识码:1200000077 备案编号:津ICP备19001981号
津公网安备12010102000518号
版权所有:天津市规划和自然资源局