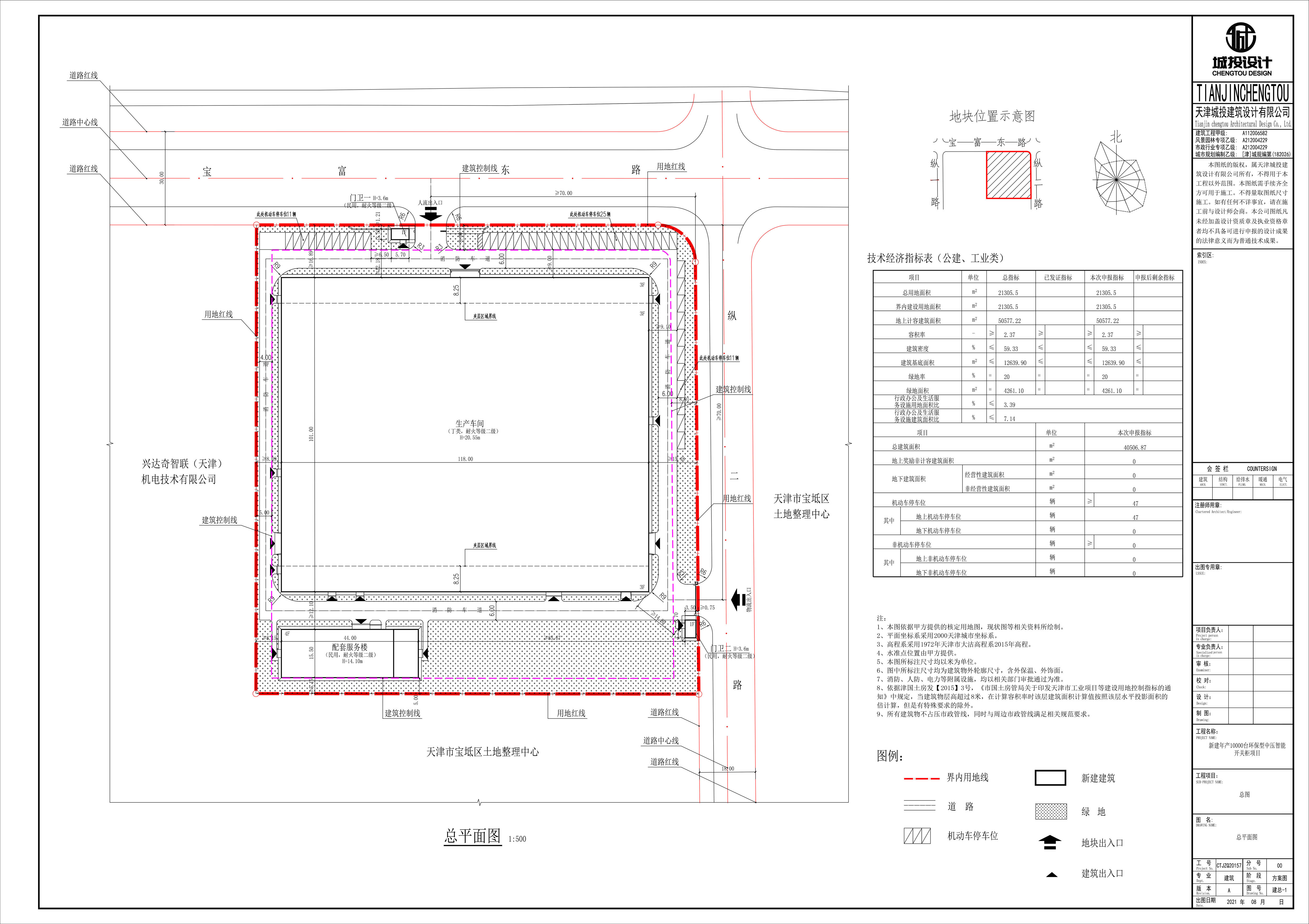
依据《中华人民共和国城乡规划法》和住房城乡建设部《关于城乡规划公开公示的规定》等相关规定要求,现将普瑞斯玛电气股份有限公司申请生产车间、配套服务楼、门卫一、门卫二项目建设工程设计方案总平面图公示,公示时间为7个工作日( 从2021年08月27日至2021年09月06日)。
建议意见反馈方式:可通过电子邮箱或信件反馈
电子邮箱gzjbdfjjgk@tj.gov.cn
邮寄地址:天津市宝坻区潮阳大道北侧(天津市规划与自然资源局宝坻分局)
邮政编码:301800
征求意见时间为7个工作日,逾期视为无意见。






津公网安备12010102000518号