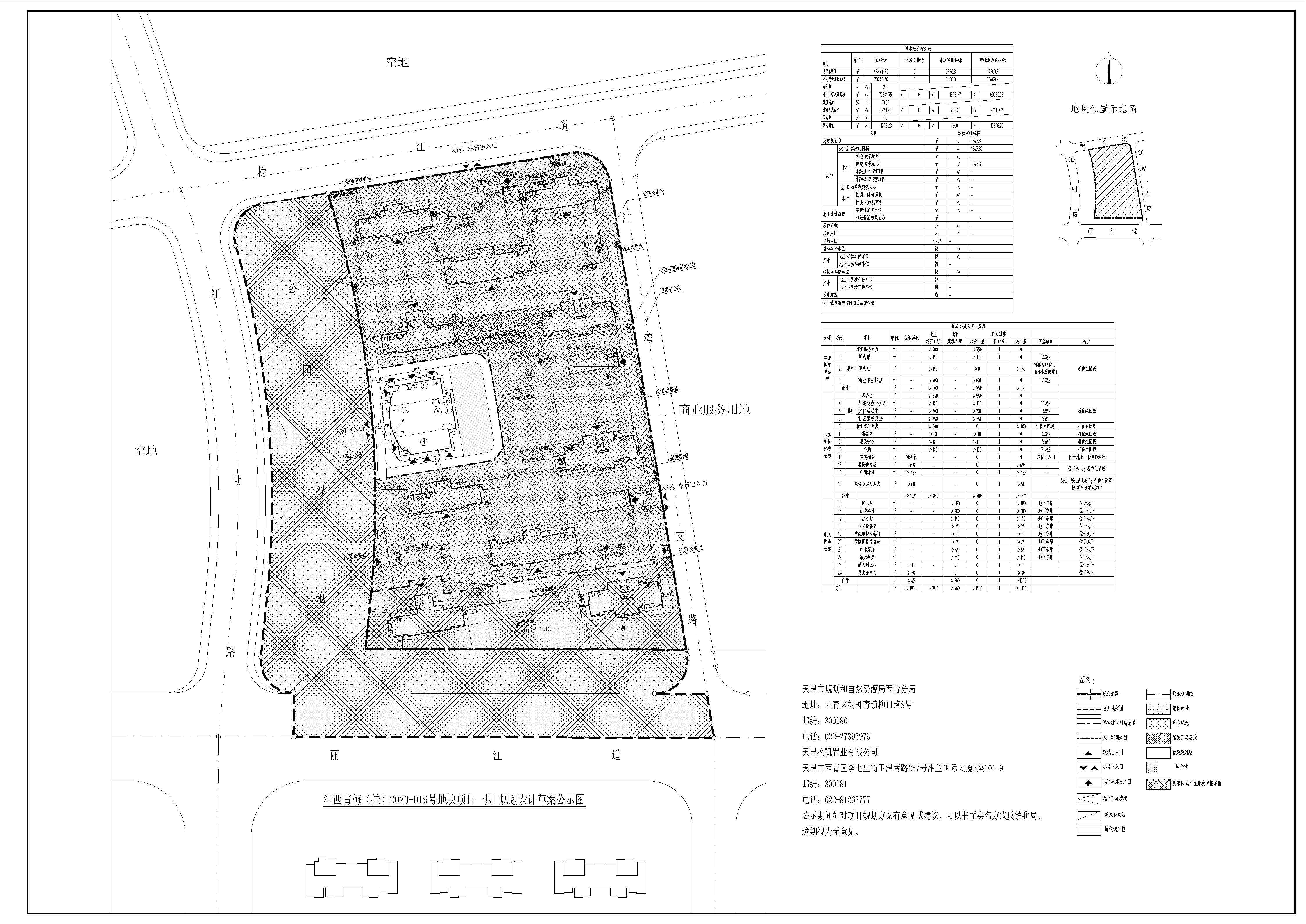
为进一步提高规划设计和管理水平,增加规划审批的科学性、民主性、公开性及透明度,争取社会各界对规划管理工作的理解、支持、监督和指导,加强全社会的城市规划意识,更好地为城市建设、经济发展和社会进步服务,根据有关规定,现将天津盛凯置业有限公司津西青梅(挂)2020-019地块项目一期规划草案进行公示,公示时间为7个工作日(2021年2月8日至2021年2月22日)。公示期间,如对项目规划方案有意见或建议,可以书面实名方式反馈我局,逾期视为无意见。
通讯地址:天津市西青区柳口路8号
联系电话:022-27395979
邮政编码:300380
2021年2月8日






津公网安备12010102000518号