规划公示
天津太阳花暖通设备有限公司申请的新建装配车间项目建设工程设计方案总平面图公布
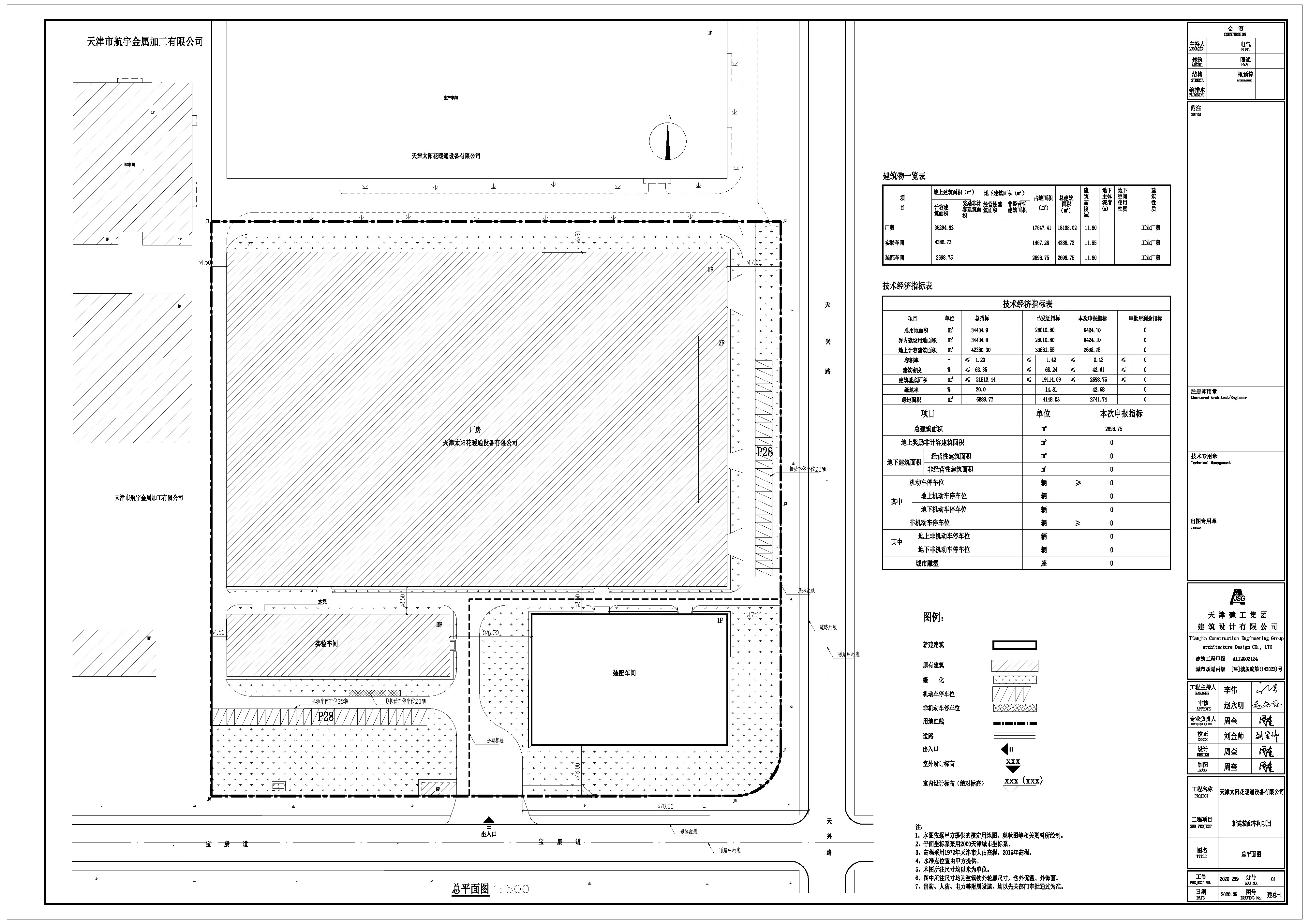
依据《中华人民共和国城乡规划法》和住房城乡建设部《关于城乡规划公开公示的规定》等相关规定要求,现将天津太阳花暖通设备有限公司申请的新建装配车间项目建筑设计方案总平面图进行批后公布,公布时间至规划验收合格为止。

附件下载:
依据《中华人民共和国城乡规划法》和住房城乡建设部《关于城乡规划公开公示的规定》等相关规定要求,现将天津太阳花暖通设备有限公司申请的新建装配车间项目建筑设计方案总平面图进行批后公布,公布时间至规划验收合格为止。

国务院相关部委
政府机关
局属单位网站
主办单位:天津市规划和自然资源局 地址:天津市和平区曲阜道84号 邮编:300042
网站标识码:1200000077 备案编号:津ICP备19001981号
津公网安备12010102000518号
版权所有:天津市规划和自然资源局