规划公示
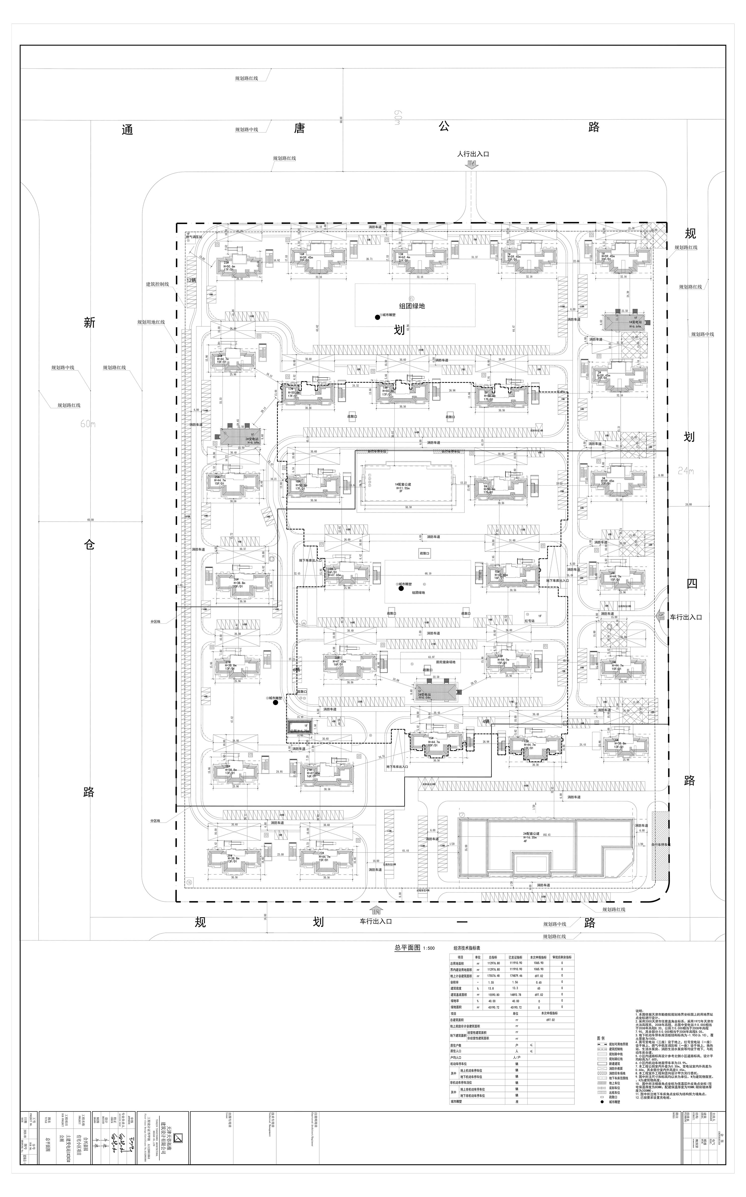
中金建投(天津)置业有限公司申请的合兴嘉园住宅小区土建变电站1#、2#、3#、公厕项目建设工程设计方案总平面图公布
依据《中华人民共和国城乡规划法》和住房城乡建设部《关于城乡规划公开公示的规定》等相关规定要求,现将中金建投(天津)置业有限公司申请的合兴嘉园住宅小区土建变电站1#、2#、3#、公厕项目建筑设计方案总平面图进行批后公布,公布时间至规划验收合格为止。

附件下载:





津公网安备12010102000518号