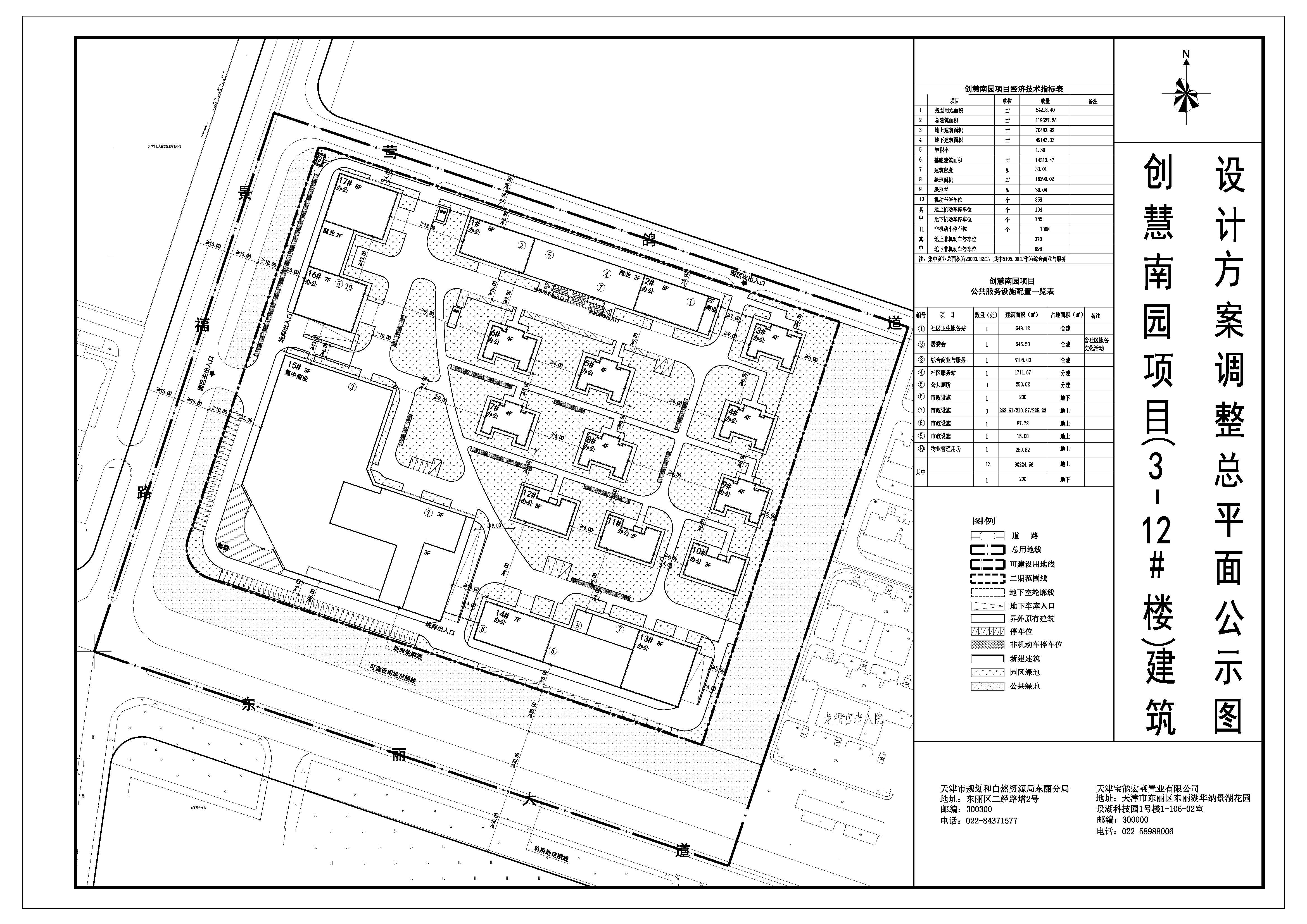
规划公示
依据《中华人民共和国城乡规划法》的有关要求,现将天津宝能宏盛置业有限公司创慧南园(3#-12#)建筑设计方案调整总平面图进行公示,公示期为7个工作日。意见反馈请回复东丽分局建管科,电话:84371577。

附件下载:
国务院相关部委
政府机关
局属单位网站
主办单位:天津市规划和自然资源局 地址:天津市和平区曲阜道84号 邮编:300042
网站标识码:1200000077 备案编号:津ICP备19001981号
津公网安备12010102000518号
版权所有:天津市规划和自然资源局