规划公示
依据《中华人民共和国城乡规划法》和建设部《关于城乡规划公开公示的规定》等相关规定要求,现将该项目建设工程设计方案总平面图进行公示,公示期为7个工作日。
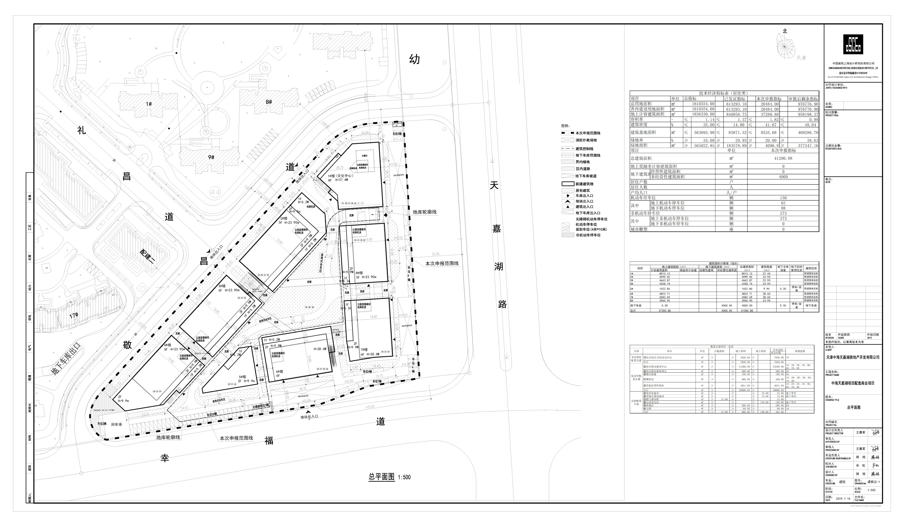
建设单位:天津中海天嘉湖房地产开发有限公司
项目名称:中海天嘉湖项目配套商业项目
公示时间:2019年7月23日至2019年7月31日(7个工作日)
公示内容:建设工程设计方案总平面图
组织单位:天津市规划和自然资源局津南分局
联系人:高智 联系电话:88510862

附件下载:





津公网安备12010102000518号