规划公示
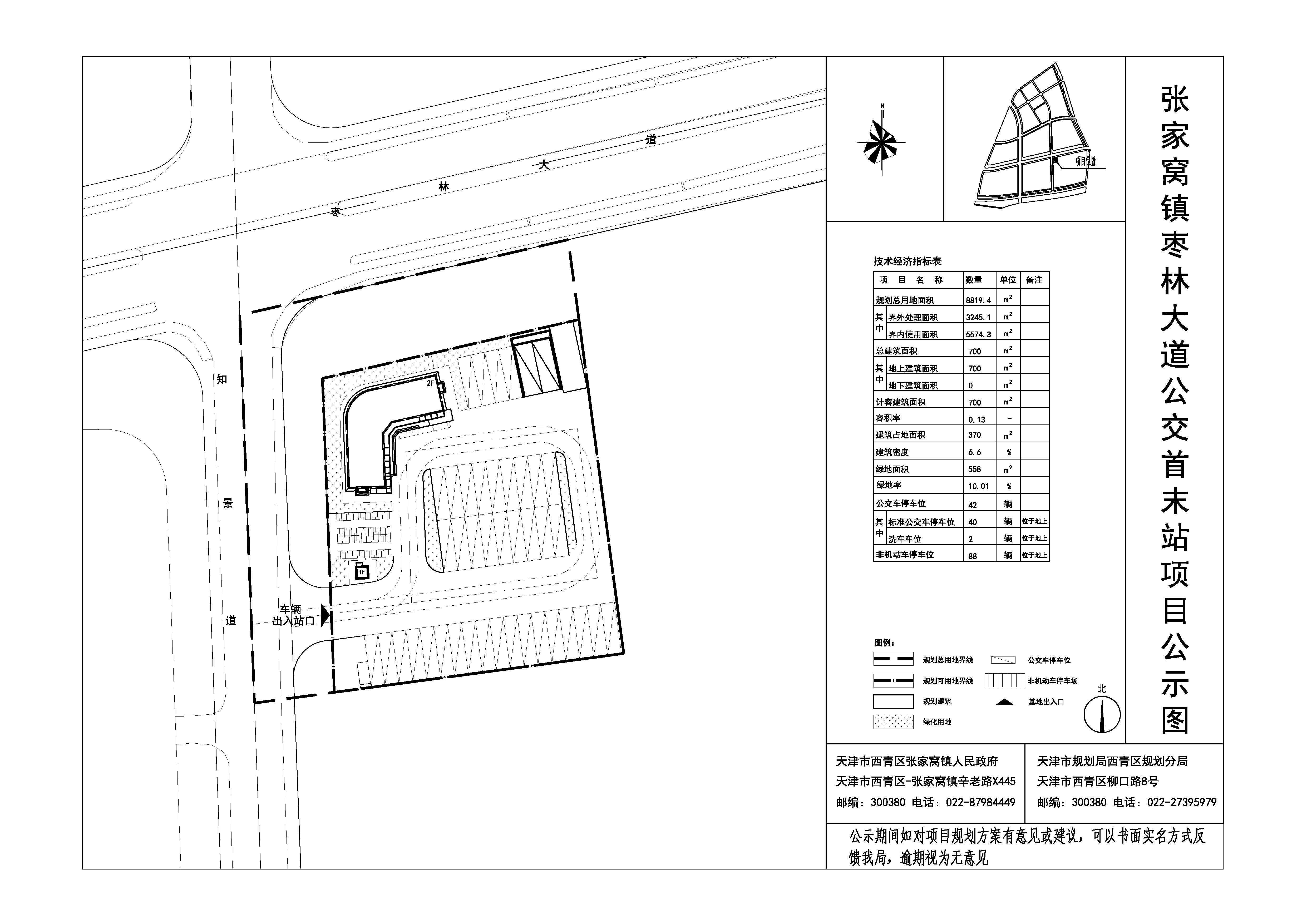
依据《中华人民共和国城乡规划法》和《关于印发<天津市城乡规划公开实施方案>的通知》的有关要求,现将公示天津市西青区张家窝镇人民政府张家窝镇枣林大道公交首末站项目总平面图进行公示,公示时间为7个工作日。
天津市规划局西青区规划分局
2019年1月23日

附件下载:
国务院相关部委
政府机关
局属单位网站
主办单位:天津市规划和自然资源局 地址:天津市和平区曲阜道84号 邮编:300042
网站标识码:1200000077 备案编号:津ICP备19001981号
津公网安备12010102000518号
版权所有:天津市规划和自然资源局