规划公示
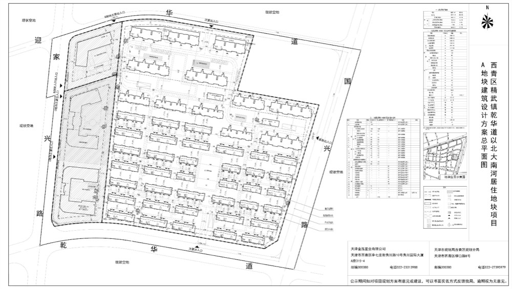
依据《中华人民共和国城乡规划法》和《关于印发<天津市城乡规划公开实施方案>的通知》的有关要求,现将西青区精武镇乾华道以北大南河居住地块A地块总平面图进行公示,公示时间为7个工作日。
天津市规划局西青区规划分局
2018年9月29日

附件下载:
国务院相关部委
政府机关
局属单位网站
主办单位:天津市规划和自然资源局 地址:天津市和平区曲阜道84号 邮编:300042
网站标识码:1200000077 备案编号:津ICP备19001981号
津公网安备12010102000518号
版权所有:天津市规划和自然资源局