规划公布
(河北区)关于河北区群芳苑项目(三期)建筑设计方案总平面图的公布
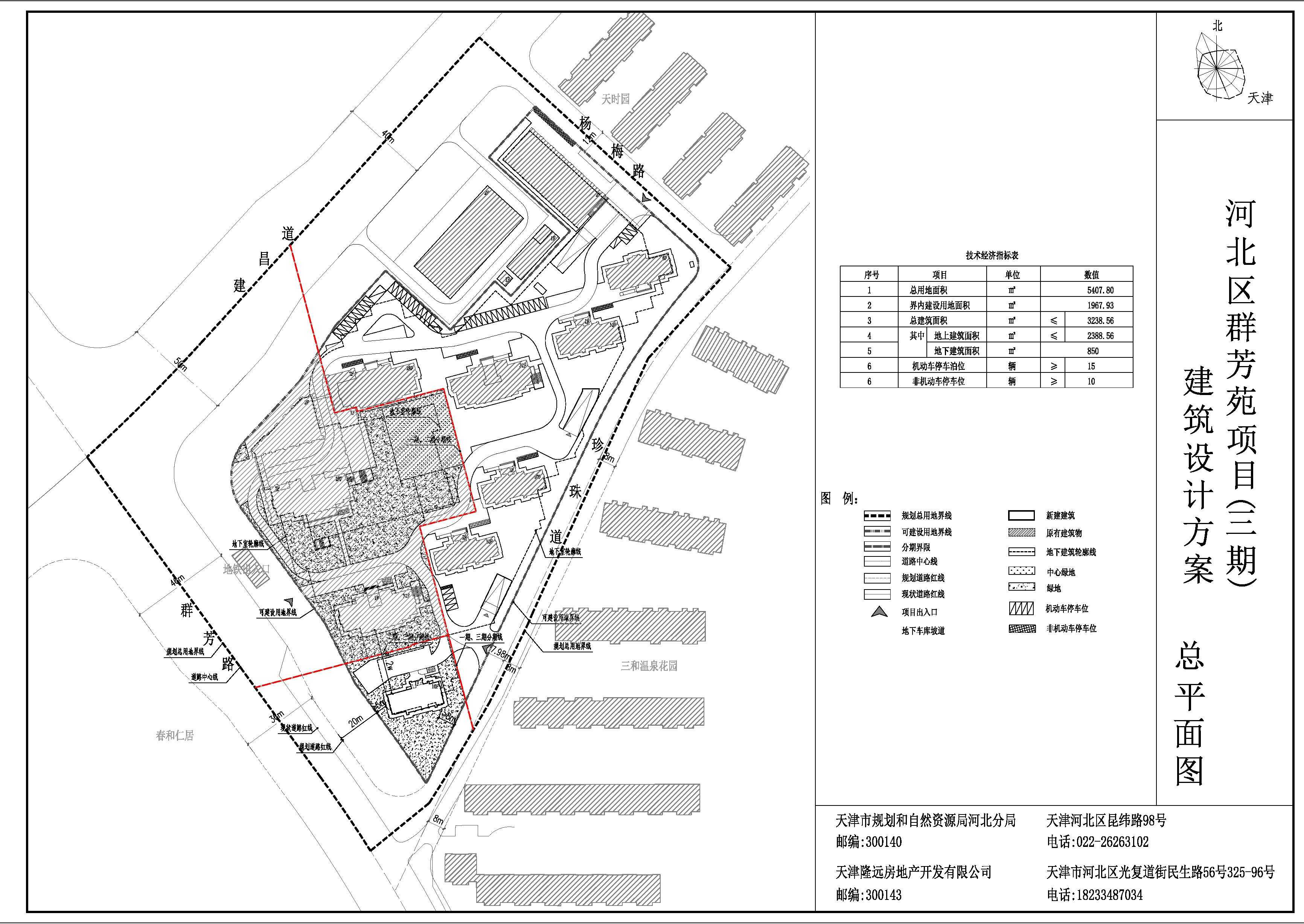
依据《中华人民共和国城乡规划法》的有关要求,现将河北区群芳苑项目(三期)建筑设计方案总平面图进行公布,公布期限为信息发布之日起至建设项目规划验收合格为止。
通讯地址:天津市河北区昆纬路98号
联系电话:022-26263102
邮政编码:300140

天津市规划和自然资源局河北分局
2024年12月4日
附件下载:
1
、
群芳苑(三期).jpg





津公网安备12010102000518号