规划公布
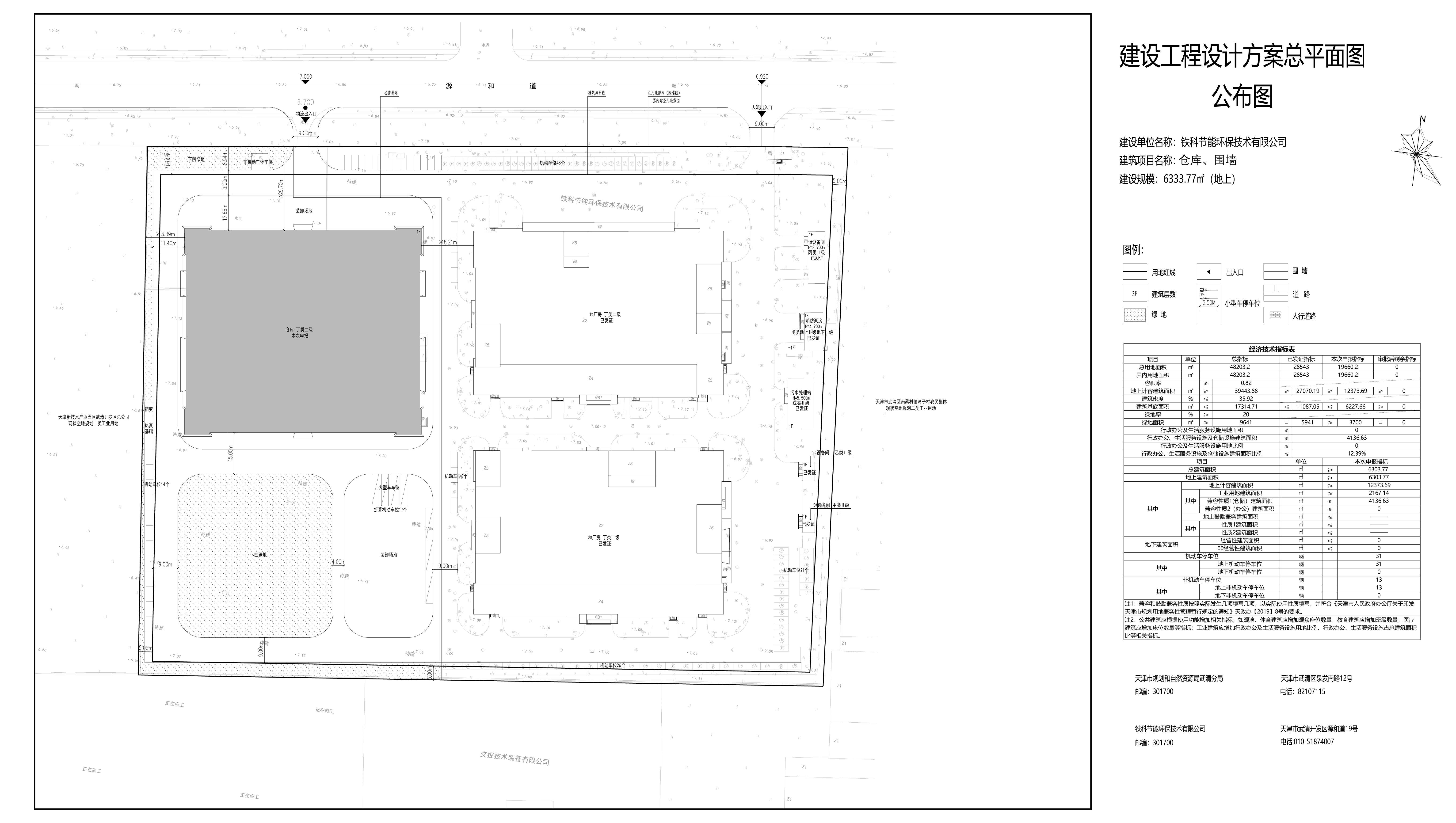
(武清区)关于开发区铁科节能环保技术有限公司仓库、围墙项目建设工程设计方案总平面图的公布
依据《中华人民共和国城乡规划法》《天津市城乡规划条例》等相关法律法规的有关要求,现将开发区铁科节能环保技术有限公司仓库、围墙项目建设工程设计方案总平面图进行公布,公布期限为信息发布之日起至建设工程规划验收合格为止。

天津市规划和自然资源局武清分局
2023年5月26日
附件下载:
1
、
铁科公布图.jpg





津公网安备12010102000518号