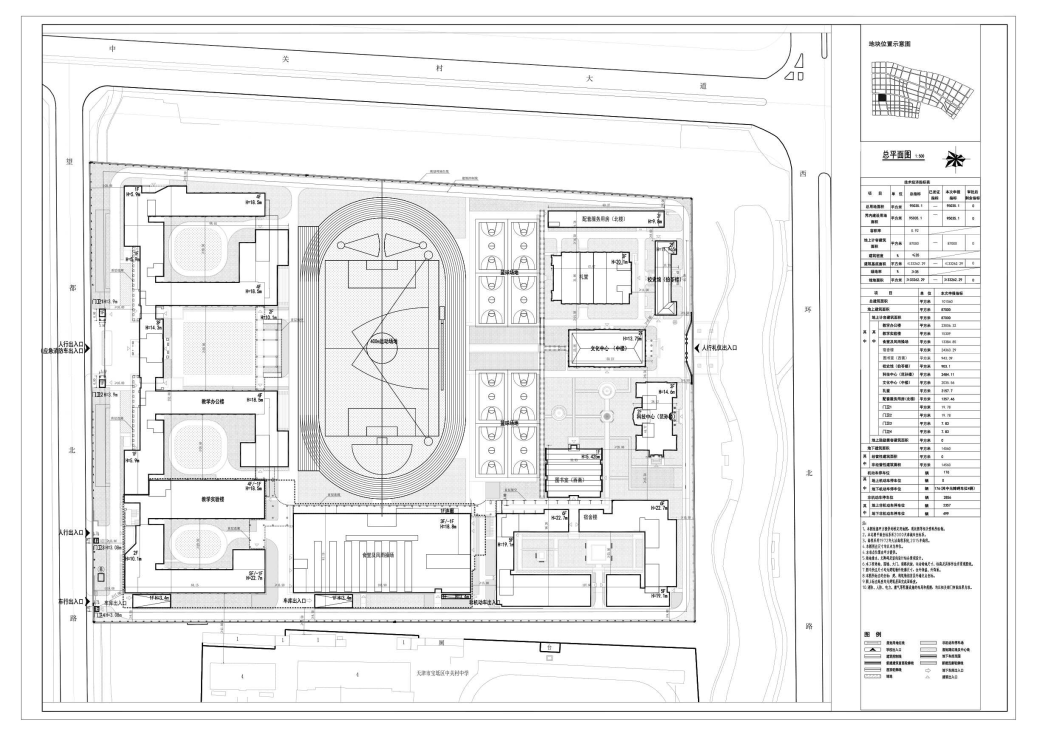
天津市规划和自然资源局宝坻分局于2023年3月30日核发了天津启智汇达城市运营管理有限公司教学办公楼、教学实验楼、食堂及风雨操场、宿舍楼、图书室(西斋)、科技中心(范孙楼)、文化中心(中楼)、校史馆(伯苓楼)、礼堂、配套服务设施(北楼)、门卫1、2、3、4、地下车库项目建设工程规划许可证。依据《中华人民共和国城乡规划法》及住房和城乡建设部《关于城乡规划公开公示的规定》的有关要求,现将该项目总平面图公布,公布期限为信息发布之日起至建设项目规划验收合格为止。
公示部门:天津市规划和自然资源局宝坻分局
建议意见反馈方式:可通过电子邮箱或信件反馈
邮寄地址:天津市宝坻区潮阳大道北侧(天津市规划和自然资源局宝坻分局)
邮编:301800
电子邮箱gzjbdfjjgk@tj.gov.cn






津公网安备12010102000518号