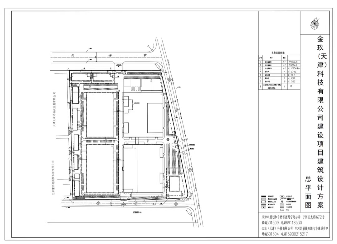
天津市规划和自然资源局宁河分局于2023年03月10日核发了金玖(天津)科技有限公司金玖(天津)科技有限公司年产100万辆自行车及100万辆电动助力车智能制造(二期)项目建设工程规划许可证。依据《中华人民共和国城乡规划法》及住房和城乡建设部《关于城乡规划公开公示的规定》的有关要求,现将该项目总平面图公布,公布期限为信息发布之日起至建设项目规划验收合格为止。
公示部门:天津市规划和自然资源局宁河分局
地址:天津市宁河区芦台镇光明路72号
邮编:301500
联系方式:022-69118530

天津市规划和自然资源局宁河分局于2023年03月10日核发了金玖(天津)科技有限公司金玖(天津)科技有限公司年产100万辆自行车及100万辆电动助力车智能制造(二期)项目建设工程规划许可证。依据《中华人民共和国城乡规划法》及住房和城乡建设部《关于城乡规划公开公示的规定》的有关要求,现将该项目总平面图公布,公布期限为信息发布之日起至建设项目规划验收合格为止。
公示部门:天津市规划和自然资源局宁河分局
地址:天津市宁河区芦台镇光明路72号
邮编:301500
联系方式:022-69118530

国务院相关部委
政府机关
局属单位网站
主办单位:天津市规划和自然资源局 地址:天津市和平区曲阜道84号 邮编:300042
网站标识码:1200000077 备案编号:津ICP备19001981号
津公网安备12010102000518号
版权所有:天津市规划和自然资源局