规划公布
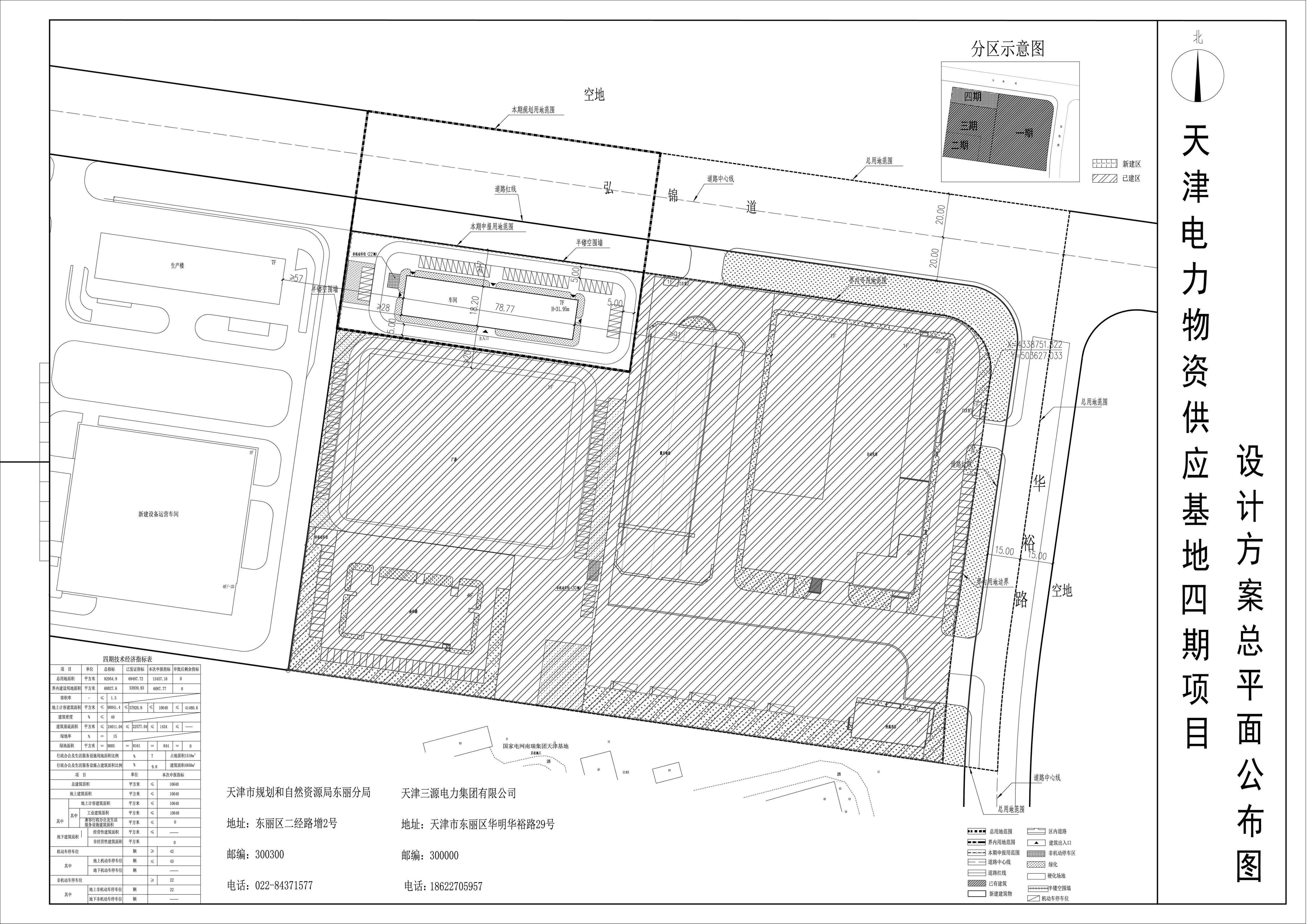
(东丽区)天津电力物资供应基地四期项目建筑工程设计方案总平面图公布
天津市规划和自然资源局东丽分局,依据《中华人民共和国城乡规划法》的有关要求,现将天津电力物资供应基地四期项目建筑工程设计方案总平面图进行公布,公布期限为信息发布之日起至建设项目规划验收合格为止。
通讯地址:天津市东丽开发区二经路增二号
联系电话:022-84371577
邮政编码:300300

天津市规划和自然资源局东丽分局
2023年2月20日
附件下载:





津公网安备12010102000518号