规划公布
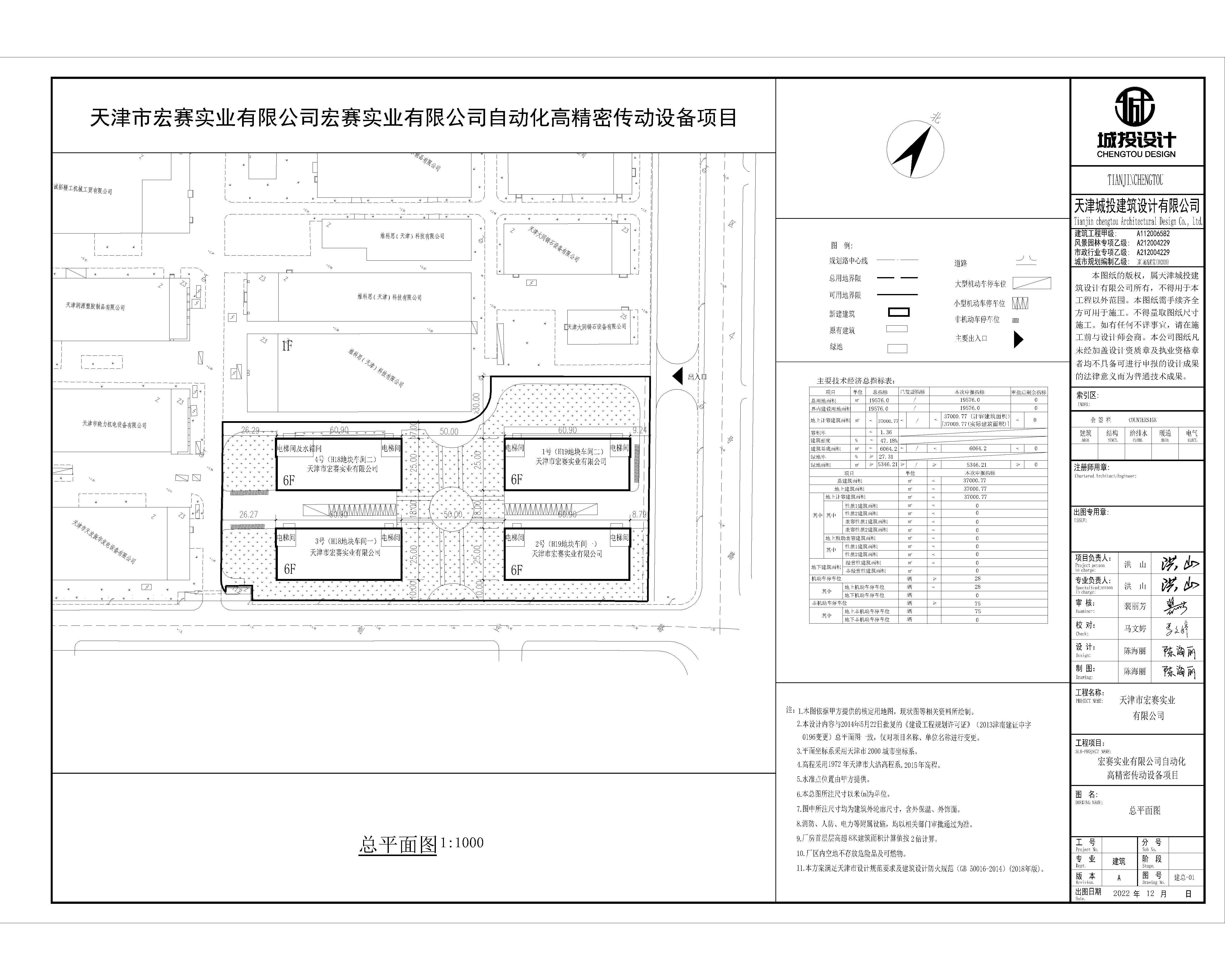
(津南区)宏赛有限公司自动化高精密传动设备项目项目建设工程设计方案总平面图的公布
依据《中华人民共和国城乡规划法》的有关要求,现将宏赛有限公司自动化高精密传动设备项目总平面图进行公布,公布期限为信息发布之日至建设项目规划验收合格为止。
通讯地址:天津市津南区南环路3号
联系电话:88510862
天津市规划和自然资源局津南分局
2023年1月21日

附件下载:





津公网安备12010102000518号