规划公布
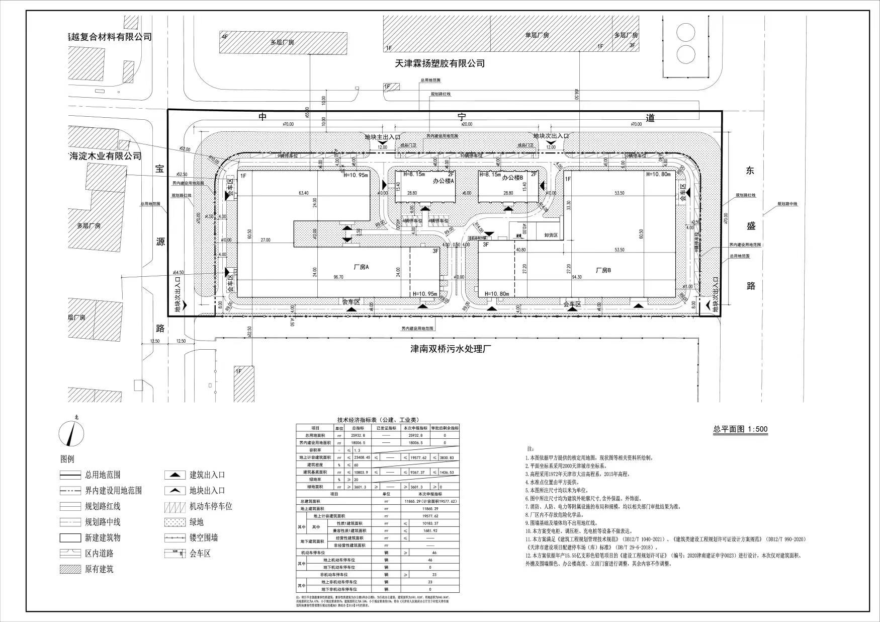
(津南区)天津盈达文教用品有限公司年产15.55亿支彩色铅笔项目设计方案总平面图的公布
依据《中华人民共和国城乡规划法》的有关要求,现将天津盈达文教用品有限公司年产15.55亿支彩色铅笔项目总平面图进行公布,公布期限为信息发布之日至建设项目规划验收合格为止。
通讯地址:天津市津南区南环路3号
联系电话:88510006
天津市规划和自然资源局津南分局
2022年9月6日

附件下载:
1
、
公布图.jpg





津公网安备12010102000518号