规划公布
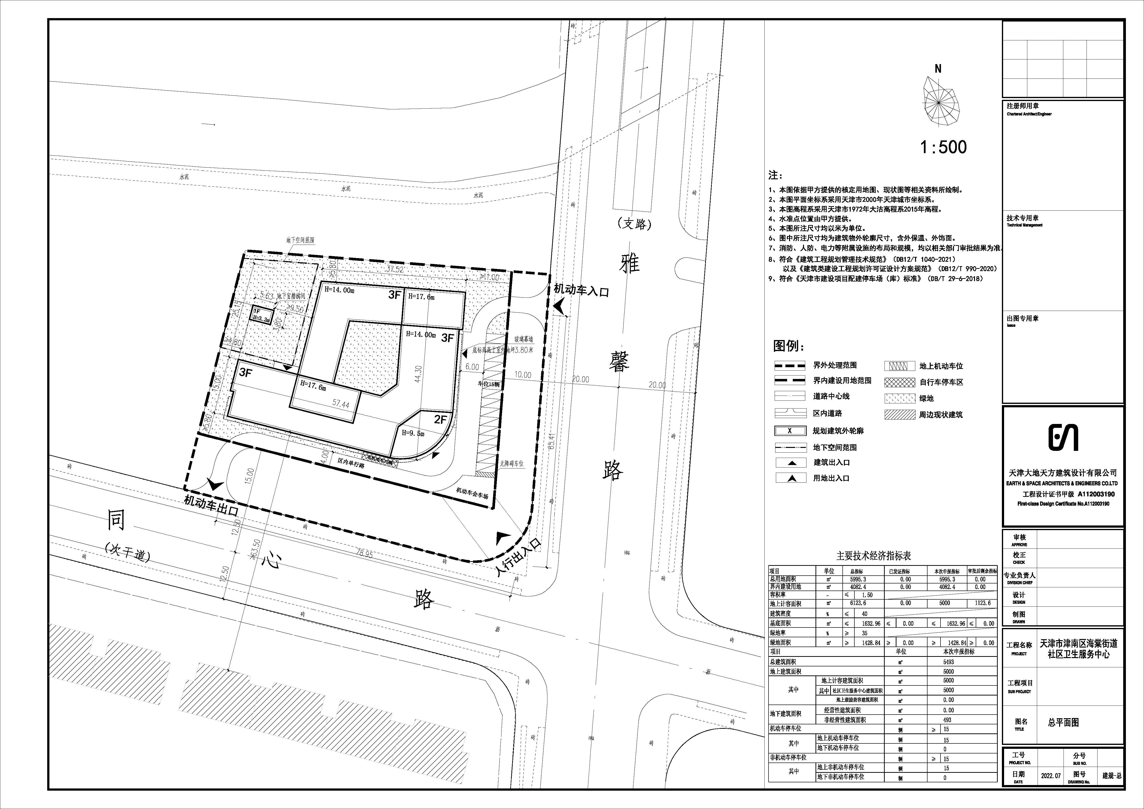
(津南区)天津市津南区人民政府海棠街道办事处天津市津南区海棠街道社区卫生服务中心建设工程规划设计方案总平面图的公布
依据《中华人民共和国城乡规划法》的有关要求,现将天津市津南区人民政府海棠街道办事处天津市津南区海棠街道社区卫生服务中心建设工程总平面图进行公布,公布期限为信息发布之日至建设项目规划验收合格为止。
通讯地址:天津市津南区南环路3号
联系电话:88510006
天津市规划和自然资源局津南分局
2022年8月22日

附件下载:
1
、
公布图.jpg





津公网安备12010102000518号