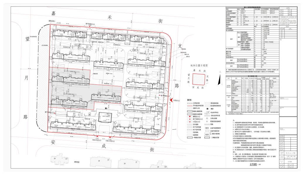
天津市规划和自然资源局宝坻分局于2022年9月23日核发了天津晋宝房地产开发有限公司申请津宝(挂)2021-017号地块1-12#楼、15-18#楼、22-24#楼、配建1-12#楼、地下车库一、大门1、大门2、围墙项目建设工程规划许可证。依据《中华人民共和国城乡规划法》及住房和城乡建设部《关于城乡规划公开公示的规定》的有关要求,现将该项目总平面图公布,公布期限为信息发布之日起至建设项目规划验收合格为止。
公示部门:天津市规划和自然资源局宝坻分局
建议意见反馈方式:可通过电子邮箱或信件反馈
邮寄地址:天津市宝坻区潮阳大道北侧(天津市规划和自然资源局宝坻分局)
邮编:301800
电子邮箱gzjbdfjjgk@tj.gov.cn






津公网安备12010102000518号