规划公布
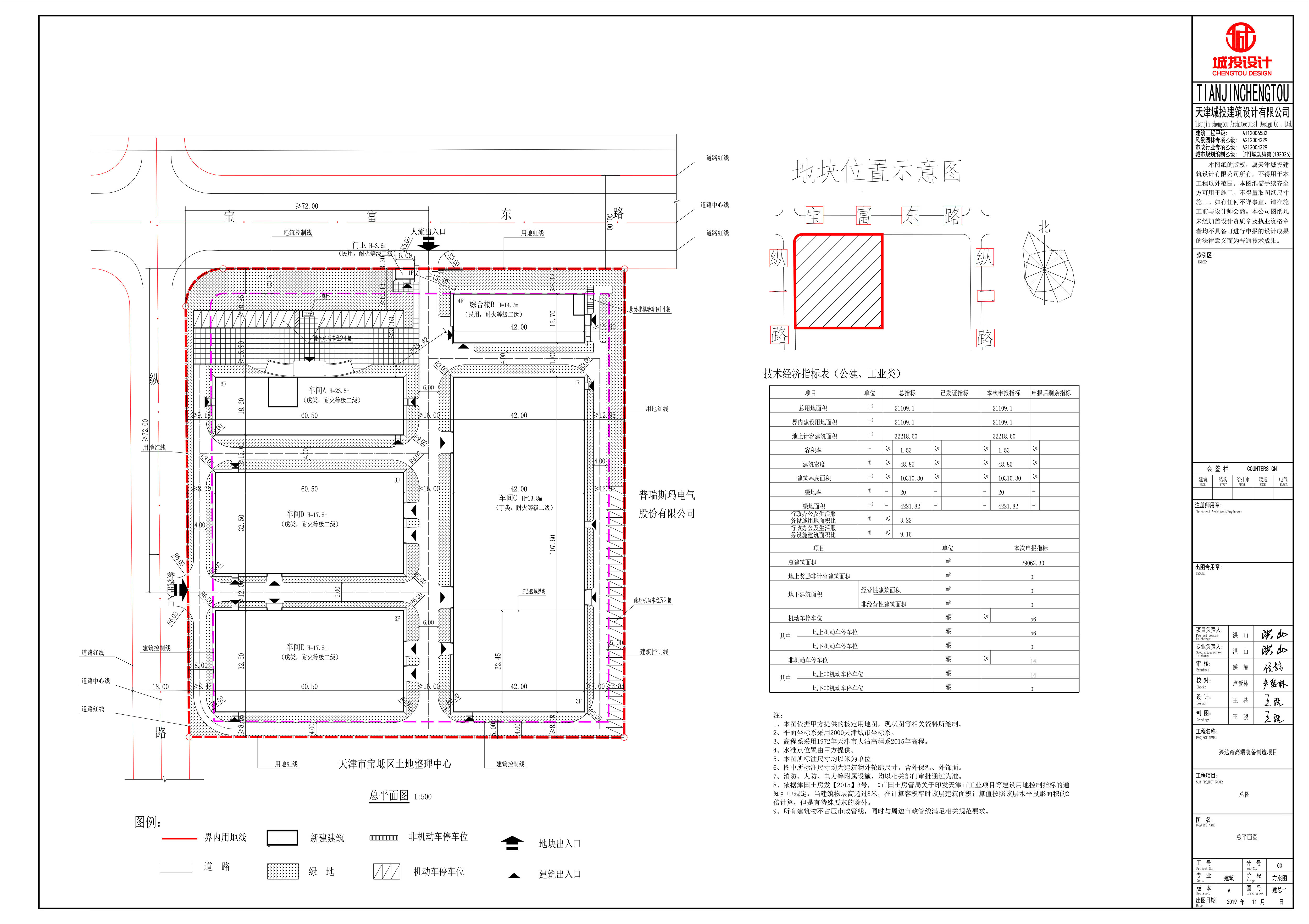
兴达奇智联(天津)机电技术有限公司申请的车间A、综合楼B、车间C、车间D、车间E、门卫项目建设工程设计方案总平面图公布
依据《中华人民共和国城乡规划法》和住房城乡建设部《关于城乡规划公开公示的规定》等相关规定要求,现将兴达奇智联(天津)机电技术有限公司申请的车间A、综合楼B、车间C、车间D、车间E、门卫项目建筑设计方案总平面图进行批后公布,公布时间至规划验收合格为止。

附件下载:





津公网安备12010102000518号