规划公布
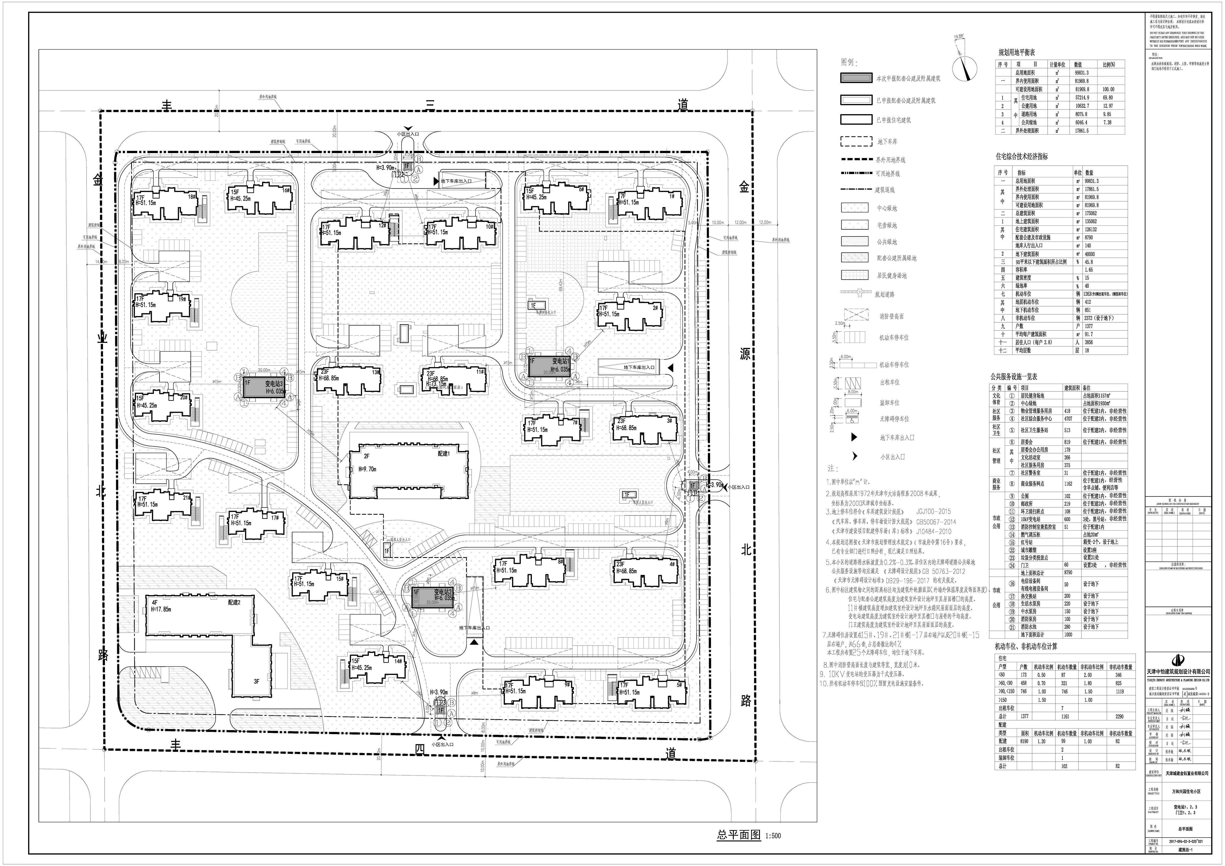
天津城建金钰置业有限公司申请的万和兴园变电站1、变电站2、变电站3、门卫1、门卫2、门卫3项目建设工程设计方案总平面图公布
依据《中华人民共和国城乡规划法》和住房城乡建设部《关于城乡规划公开公示的规定》等相关规定要求,现将天津城建金钰置业有限公司申请的万和兴园变电站1、变电站2、变电站3、门卫1、门卫2、门卫3项目建筑设计方案总平面图进行批后公布,公布时间至规划验收合格为止。

附件下载:





津公网安备12010102000518号